千章墅380㎡法式风格
发布时间:2020-04-16 04:03
案例详情 项目介绍:本案坐落在通州别墅区,叠拼别墅建筑面积380㎡,使用功能为纯住宅功能,整体装修风格为法式风格。预算说明:半包22万元(不含主材)
外墙多用石材或仿石才装饰
上部平缓,下部陡直。屋顶上多有精致的老虎窗,且或圆或尖,造型各异
力求在气质上给人深度的感染。风格则偏于庄重大方,整个建筑多采用对称造型
细节处理上运用了法式廊柱、雕花、线条,制作工艺清细考究
法式建筑呈现出浪漫典雅风格。
它是一种基于对理想情景的考虑,追求建筑的诗意、诗境
法式建筑十分推崇优雅、高贵和浪漫
恢宏的气势,豪华舒适的居住空间,屋顶多采用孟莎式,坡度有转折
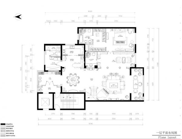
平面布置图
网址:千章墅380㎡法式风格 https://c.jiaju82.com/news-view-id-698281.html

