现代简约-三居-温馨家园
发布时间:2020-04-15 20:01
案例详情 一、形式元素:采用直线及块面为基本形式设计元素, 以表达业主沉稳、内敛的生活性格。 二、材料元素:以乳胶漆、墙纸、橡木为主要材料,对比与和谐,相得宜彰。 三、色彩元素:米色的背景,纯净而安全;柔和的布艺,温馨而浪漫;灯光里的浅黄,若隐半遮面;透过玻璃的轻帘,主人与光影共同编织一幅美丽画卷。 四、贯穿手法:本案在形式与内容的处理上,始终将每一个点的设计作整体性考虑。在点、线、面本身的处理保持风格统一的基础上,运用变化空间序列的手法达到对整案风格的深化。尤其考虑到在空间流线的移动过程中,空间关系的不断变化而形成的新的审美创意和格局。
餐厅
墙面柜装饰品
客厅电视墙
客厅沙发墙
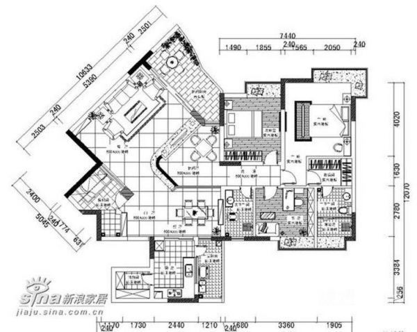
平面设计图
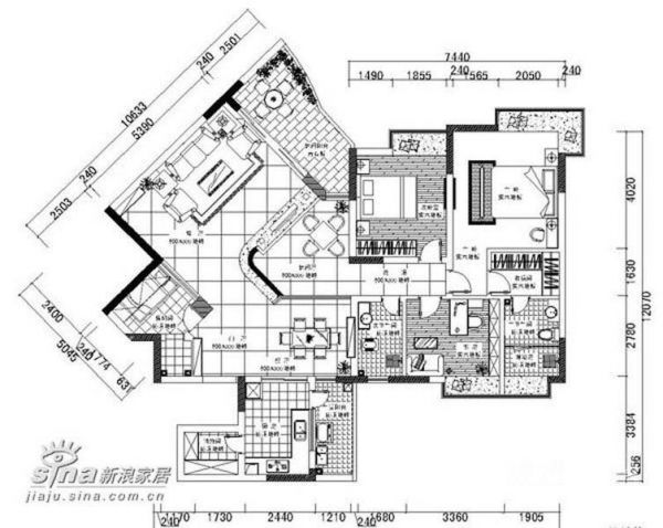
平面设计图
网址:现代简约-三居-温馨家园 https://c.jiaju82.com/news-view-id-698222.html

