【汇航桃园】现代简约 跃层/loft 200
发布时间:2020-04-15 19:03
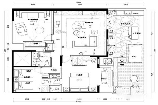
案例详情 本案设计在原户型结构基础上,将结构空间加以改造,使得地下一层的主卧空间增大,照明及通风循环更好。儿童房设计充分满足儿童的使用及玩耍需求。整体空间色调简洁明快,造型朴素,材质纯洁,整个居住空间舒适闲怡。
客厅:清雅大理石融入生活的自然肌理,与熨帖的真皮、丝绒,打造低调内敛的气质空间,感受诗意生活带来的视觉与触觉享受,自然惬意,浪漫优雅
卧室空间运用低调细腻的材质,色彩与肌理的围合感。将平凡的美感投射于干净的环境之上,家具的轮廓,绒面的质感,灯光的温润简约的软饰将空间营造出舒适的感觉。设计师在表现设计也不忘把女主人最喜欢的沙发纳入空间。眼观当下世界的物质到达一定层面,唯一确立追求的万物精神层面,从而懂得生活滋味,品味艺术的拙见性,享受身心解放的自由。
开阔的视野效果,采用玻璃材质将室外庭院的光线及景色引入,在起居室小憩时将会是一种极好的生活享受。
餐厅:幸福是每一丝火焰跳动的温度,奢华的材质、理性的色彩,于无形之中,酝酿出高雅的气质格调,用理性的设计构建出厨房浪漫的丰满气韵。
庭院的设计延续了空间自由的手法,让建筑更直观更近距离的接触自然,使室内外空间无缝对接,间接的将公共空间与私有空间隔绝开来。
整体以黑,白,木三色为主色调,纯粹、干净、清爽。空间线条简洁利落,搭了极窄的踢脚线,提升空间整体感。希望空间有更好的互动,以及空间尺寸化,
本层经由空间及使用者的紧密结合之后,所延伸出来的微妙关系,再成为建构无负担的生活机能的主要基石。
网址:【汇航桃园】现代简约 跃层/loft 200 https://c.jiaju82.com/news-view-id-698217.html

