天鹅湾280平欧式古典风格案例赏析
发布时间:2020-04-15 19:01
案例详情 项目名称:天鹅湾 设计风格:欧式风格设计单位:实创装饰集团整体家装:装修一口价、闭口合同家装类型:88理想装施工工期:50天工程面积:280平米房屋类型:4室2厅1厨2卫整体造价:208088元(设计+硬装)设计说明: 简约、质朴的设计风格是众多人群所喜爱的,生活在繁杂多变的世界里已是烦扰不休,而简单、自然的生活空间却能让人身心舒畅,感到宁静和安逸;藉着室内空间的解构和重组,便可以满足人们对悠然自得的生活的向往和追求,让他们在纷扰的现实生活中找到平衡,缔造出一个令人心弛神往的写意空间。把这种理念融入设计里,摒弃了吹毛求疵的形式美,否定过分的堆砌和浮夸,通过清晰,简明的线条剪裁和素净质朴的家具组合,构建出舒适的生活环境。
简约、质朴的设计风格是众多人群所喜爱的,生活在繁杂多变的世界里已是烦扰不休,而简单、自然的生活空间却能让人身心舒畅,感到宁静和安逸
藉着室内空间的解构和重组,便可以满足人们对悠然自得的生活的向往和追求,让他们在纷扰的现实生活中找到平衡,缔造出一个令人心弛神往的写意空间
把这种理念融入设计里,摒弃了吹毛求疵的形式美,否定过分的堆砌和浮夸
欧式的居室有的不只是豪华大气,更多的是惬意和浪漫。通过完美的典线,精益求精的细节处理,带给家人不尽的舒服触感,实际上和谐是欧式风格的最高境界
通过清晰,简明的线条剪裁和素净质朴的家具组合,构建出舒适的生活环境。
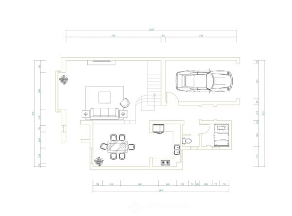
天鹅湾280平欧式古典风格案例赏析户型图
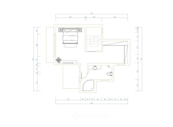
天鹅湾280平欧式古典风格案例赏析户型图
网址:天鹅湾280平欧式古典风格案例赏析 https://c.jiaju82.com/news-view-id-698207.html

