阳光海岸 温馨小屋
发布时间:2020-04-15 18:03
案例详情 项目名称:观景园装修风格:地中海风格总造价:90399户型:3室1厅1卫1厨面积:100平米 为了营造温馨的空间,我们没有选择白与蓝的搭配,而是选择了地中海中的土黄和红褐的组合效果。地面的拼花赤陶、小细条纹格子图案的沙发,顶面的线条、拱形的门洞和背景造型,营造出一个温馨舒适的公共空间。
为了营造温馨的空间,我们没有选择白与蓝的搭配,而是选择了地中海中的土黄和红褐的组合效果。地面的拼花赤陶、小细条纹格子图案的沙发,顶面的线条、拱形的门洞和背景造型,营造出一个温馨舒适的公共空间。
餐厅墙面的板包既美观又实用,它是风格的一部分,同时又隐蔽了弱电箱的位置。桌面的摆设让人联想到了南意大利的向日葵,阳光灿烂,铁艺的吊扇送来微风徐徐,生活可以如此轻松惬意。
开房式的书房留出一个阳台的位置,它既是小两口的阳台,也是花园。可爱的绿色盆栽给本来孤单的阳台带来勃勃生机。无论是在书房努力工作,还是在小花园赏花喝茶,小巧的壁灯都默默陪伴在左右。
原来主卧的门洞因为对着大门,被改到侧面,原先的门洞则被改造成实用的地柜和拱形的壁龛造型。台面上可以根据心情摆放不同的饰品或绿植,这样进门抬头看到的永远是美丽的景观
蓝色的家具、线条格子的壁纸,铁艺的吊灯,延续着烂漫与温馨,飘窗改造的地柜,实用、美观,女主人可以把它作为梳妆台,也可以在寒冷的冬天,临窗而坐,享受冬日的温暖阳关。
厨房是小两口的美食天地,蓝灰色的橱柜中跳跃着彩色瓷砖,铁艺的五金架挂满了主人展示厨艺的工具,整个厨房满满的香气,满满的爱。
户型图
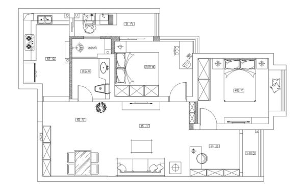
户型图
网址:阳光海岸 温馨小屋 https://c.jiaju82.com/news-view-id-698170.html

