润枫水尚-美式风格
发布时间:2020-04-15 12:02
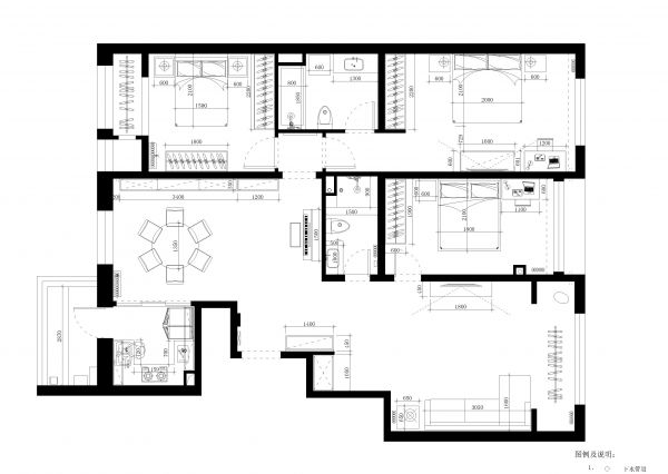
案例详情 业主需求:常住人口3人,要求舒适、视野开阔,空间利用合理,本方案属于美式风格,色彩温馨,材质柔和,符合部分女性业主对居室的期待设计理念:常住人口3人,要求舒适、视野开阔,空间利用合理,本方案属于美式风格,色彩温馨,材质柔和,符合部分女性业主对居室的期待预算说明:半包预算8.6万
本方案属于美式风格,色彩温馨,材质柔和,符合部分女性业主对居室的期待
本方案属于美式风格,色彩温馨,材质柔和,符合部分女性业主对居室的期待
本方案属于美式风格,色彩温馨,材质柔和,符合部分女性业主对居室的期待
本方案属于美式风格,色彩温馨,材质柔和,符合部分女性业主对居室的期待
本方案属于美式风格,色彩温馨,材质柔和,符合部分女性业主对居室的期待
本方案属于美式风格,色彩温馨,材质柔和,符合部分女性业主对居室的期待
本方案属于美式风格,色彩温馨,材质柔和,符合部分女性业主对居室的期待
网址:润枫水尚-美式风格 https://c.jiaju82.com/news-view-id-698060.html

