万寿路学区房样板间
发布时间:2020-04-15 11:02
案例详情 业主需求:地处于北京万寿路学区房,面积小,为了满足3口之家功能,故对空间格局划分及储物合理设计理念:房屋虽小,五脏俱全,为了孩子对于每个空间都预留出来,并且对于储物等空间设计增加了更多功能,样板间共计2个,分别设计了现代风格和简欧风格两种预算说明:每平米2000元造价,含固定家具等
样板间简欧风格客厅,由于空间狭小,所以电视柜和餐边柜的设计采用组合柜,让储物空间更加丰富
样板间简欧风格客厅,由于空间狭小,所以电视柜和餐边柜的设计采用组合柜,让储物空间更加丰富
样板间简欧风格主卧室,主卧室增加了一个小型的衣帽间的设计,让主人们有更多的空间储物
样板间简欧风格儿童房,为了节约空间,增加了高低床的设计,如来了老人或者朋友都可以住的下,
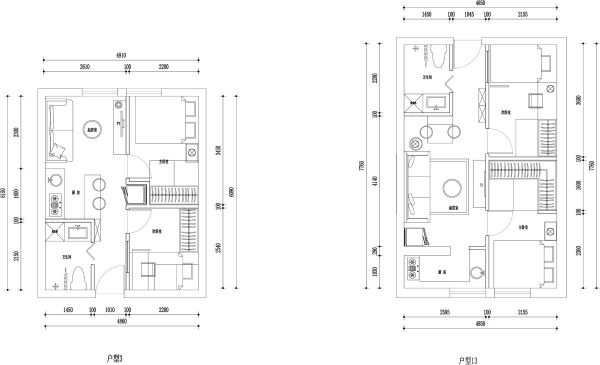
样板间简欧风格平面图,套内面积50多平米的空间,设计了2室一厅的格局,让空间灵动性更强
网址:万寿路学区房样板间 https://c.jiaju82.com/news-view-id-698024.html

