66平新古典风演绎质韵美宅
发布时间:2020-04-14 21:01
案例详情 设计师创造无与伦比的清新典雅,為女屋主体现细腻优雅的生活本质。推开门扉,映入眼帘的是新古典的华丽主题,从玄关开始就挥洒细节的精緻,璀璨水晶吊灯、鏤空山茶花屏风与菱格磁砖地坪,铺陈出独有专属的美学氛围。
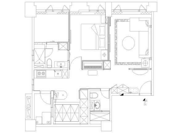
卫生间干湿分离,挡水条+浴帘让干湿区功能更明确,湿区贴花砖做背景墙,让空间显得没那么压抑。吊柜型洗漱台可以更好的保护原木柜体,不被地上的水浸泡腐蚀,延长使用寿命。
户玄关墙面刷成清新蓝,换鞋凳、鞋柜、储物柜、并在墙面安装换衣镜,清晰合理的规划把家收拾得井井有条,独具格调。
客厅墙面与玄关刷同色系乳胶漆,整体形成衔接。打通客厅与阳台间的墙面,让室内光线充足,活动面积更宽阔。
书房以鹅黄色为基调,简易型书桌满足日常办公需求,榻榻米床设计与次卧相同,休息、储物、娱乐,满足一房多用的需求
主卧设计主要是舒适实用为主,,墙面刷成暖色系,吸顶灯散发出暖暖的光,营造出温馨的睡眠空间,卸下一天的疲惫,缓缓入眠。
来到唯美浪漫的客厅,沙发背墙以罗马柱来妆点,赋予遇见欧洲的美丽想像;而电视墙与钢琴间的交接转角处,看似优雅的古典线板与鏤空花卉,实為机柜的机能及通风使用,将屋主真切的生活习惯蕴藏其中。温婉的主卧场域,围塑著古典奢华的灵魂,更展现屋主的品味与喜好。
网址:66平新古典风演绎质韵美宅 https://c.jiaju82.com/news-view-id-697939.html

