松榆西里57平现代简约效果图设计
发布时间:2020-04-14 17:04
案例详情 松榆西里57平现代简约效果图设计项目名称:松榆西里设计风格:现代简约设计单位:实创装饰集团家装包含:实测面积计价,公摊墙体不算钱▲硬装+软装+定制家具=8.88万元起▲硬装:包工包料包水电,包足140项▲软装:成品窗帘全屋满配 全屋光环境▲定制家具:真整装含家具,全屋定制▲可升、可降、 可减、可换的装修施工工期:50天工程面积:57平米房屋类型:2室1厅1厨1卫整体造价:69032元(设计+硬装)设计说明:现代人面临着城市的喧嚣和污染,激烈的竞争压力,还有忙碌的工作和紧张的生活。因而,更加向往清新自然、随意的居室环境。越来越多的都市人开始摒弃繁缛豪华的装修,力求拥有一种自然简约的居室空间。 此居室整体采用中性色调,稳重,大气,却又不失品位,有令人眼前一亮的感觉。最重要的是强调功能性设计,线条简约流畅,色彩对比强烈,这是现代风格家具的特点。
现代人面临着城市的喧嚣和污染,激烈的竞争压力,还有忙碌的工作和紧张的生活。因而,更加向往清新自然、随意的居室环境。越来越多的都市人开始摒弃繁缛豪华的装修,力求拥有一种自然简约的居室空间。
最重要的是强调功能性设计,线条简约流畅,色彩对比强烈,这是现代风格家具的特点。
此居室整体采用中性色调,稳重,大气,却又不失品位,有令人眼前一亮的感觉。
最重要的是强调功能性设计,线条简约流畅,色彩对比强烈,这是现代风格家具的特点。
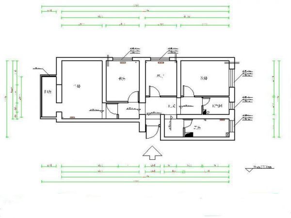
户型图
户型图
网址:松榆西里57平现代简约效果图设计 https://c.jiaju82.com/news-view-id-697886.html

