泊爱蓝岛275平地中海风格效果图设计
发布时间:2020-04-14 15:03
案例详情 项目名称:泊爱蓝岛 设计风格:地中海风格设计单位:实创装饰集团家装包含:实测面积计价,公摊墙体不算钱▲硬装+软装+定制家具=9.88万元起▲硬装:包工包料包水电,包足140项▲软装:成品窗帘全屋满配 全屋光环境▲定制家具:真整装含家具,全屋定制不限量▲可升、可降、 可减、可换的装修施工工期:50天工程面积:275平米房屋类型:5室2厅1厨3卫整体造价:326032元(设计+硬装+软装+定制家具)设计说明:设计理念源自于家主人对于爱琴海的浪漫情怀,充分展现了海天一色的纯美自然风情。在组合设计上注意空间搭配,显得大方自然,令家感受到地中海风格散发出的古老尊贵的气息。
设计理念源自于家主人对于爱琴海的浪漫情怀,充分展现了海天一色的纯美自然风情
在组合设计上注意空间搭配,显得大方自然,令家感受到地中海风格散发出的古老尊贵的气息。
将现代和传统元素结合在一起,以现代人的审美打造古典韵味的事物,让改良后的地中海风格体现出幽雅舒适的生活态度
我们尝试用一种新的语法来重新诠释地中海风格,提炼地中海传统建筑精神以及意念中的精髓,去除表象,直达内里,并充分考虑自然和传统原重点的因素,以唤醒人们深藏的场所记忆和文化认同感。
让整个空间笼罩在一个冷静而又时尚的氛围里,精致而不喧闹,水晶吊灯映衬出银箔的细致叶脉花纹,也点亮了圆顶下以碎石拼合古木的大地花。
大方自然,大型透光天花如数点繁星,将蓝白间条布艺家具与接待台,手工拷边实木台面的古典华美发挥到了极致。
整个空间的区隔均由地中海建筑的典型元素拱门来过度,更有半穿凿或全穿凿方式塑造的室内“景中窗”做装点
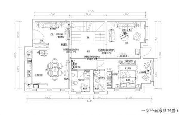
泊爱蓝岛275平地中海风格户型图
泊爱蓝岛275平地中海风格户型图
网址:泊爱蓝岛275平地中海风格效果图设计 https://c.jiaju82.com/news-view-id-697834.html

