保利紫晶山292平美式风格效果图设计
发布时间:2020-04-14 15:02
案例详情 保利紫晶山292平美式风格效果图设计项目名称:保利紫晶山设计风格:美式设计单位:实创装饰集团家装包含:实测面积计价,公摊墙体不算钱▲硬装+软装+定制家具=9.88万元起▲硬装:包工包料包水电,包足140项▲软装:成品窗帘全屋满配 全屋光环境▲定制家具:真整装含家具,全屋定制不限量▲可升、可降、 可减、可换的装修施工工期:50天工程面积:292平米房屋类型:4室2厅1厨4卫整体造价:296800元(设计+硬装)设计说明: 本案为三世同堂居住,业主喜欢美式的随意,但不希望设计过于复杂,因此在风格上以简美为主,以实用为基础,有文化感、有贵气感,还不能缺乏自在感与情调感。
美式风格有着欧罗巴的奢侈与贵气,但又结合了美洲大陆这块水土的不羁,这样结合的结果是剔除了许多羁绊,但又能找寻文化根基的新的怀旧、贵气加大气而又不失自在与随意的风格
客厅是一个家的核心空间,既是我们生活起居活动时间比较长的空间
本案为三世同堂居住,业主喜欢美式的随意,但不希望设计过于复杂,因此在风格上以简美为主,以实用为基础,有文化感、有贵气感,还不能缺乏自在感与情调感。
简单美式设计点缀再搭配床头壁灯,又显示出些许的贵族气质。
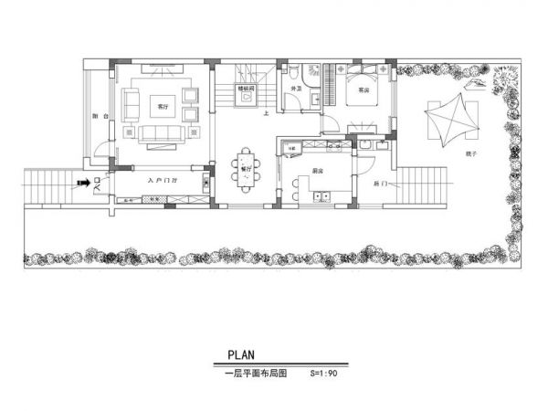
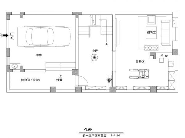
户型图
户型图
户型图
户型图
网址:保利紫晶山292平美式风格效果图设计 https://c.jiaju82.com/news-view-id-697829.html

