空间设计是室内设计的“灵魂”和“精髓”
发布时间:2020-04-14 15:01
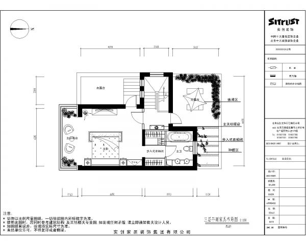
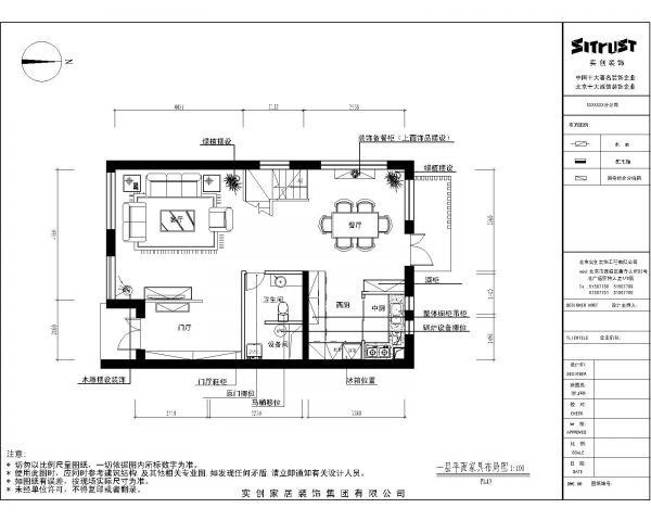
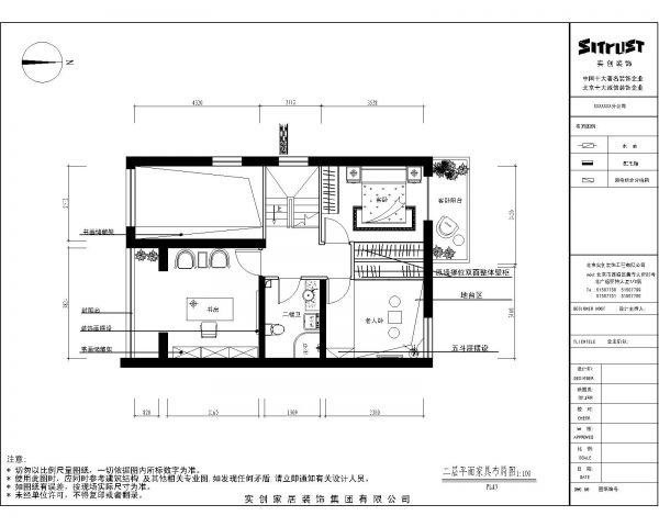
案例详情 业主需求:span stylefont-family:宋体; font-size:12pt; background-col:#FFFFFF; text-indent:-51.65pt; line-height:1.5色彩及配饰则如同室内设计的“妆容”与“服饰”,两者相辅相成、和谐统一,才能创造百变唯美的居住空间。设计是多变的,以人为本却是持久永恒的。/spanp stylemargin-left:51.6500pt; text-indent:-51.6500pt; background:#FFFFFFspan stylefont-family:宋体; font-size:10.5000pt/span/pbrbr设计理念:设计、美观与实用的完美结合!brbr预算说明:span stylefont-family:宋体; font-size:10.5pt225000元。/spanspan stylefont-family:宋体; font-size:10.5pt; line-height:1.5含基础装修、福乐阁墙漆、爱格地板、马可波罗瓷砖、巴赫曼实木复合套装门、顶固五金、巴赫曼整体橱柜、箭牌洁具、卡乐威铝天花板等。/spanpspan stylefont-family:宋体; font-size:10.5000pt/span/pp stylemargin-left:0.4ptspan stylefont-family:宋体; font-size:10.5000pt/span/ppspan stylefont-family:宋体; font-size:10.5000pt/span/ppbr/p
本案的设计精髓在于通过巧妙的造型,将吊顶和墙面装饰美感完美统一。
展示柜遥相呼应,使空间显得和谐统一、宽敞,并且时尚、舒适。
整个空间以浅咖啡色和胡桃色为主色调,配合柔和的灯光,让人感觉家的温暖。
简洁天花板与地面石材铺贴呼应,采用了整体的手法,使得整个空间更加连贯完整。
用最简单的造型表达出最美的效果,时尚而不缺乏美感,根据不同的居住人群需求,充分利用各个空间,达到协调的、完美的效果!
用最简单的造型表达出最美的效果,时尚而不缺乏美感,根据不同的居住人群需求,充分利用各个空间,达到协调的、完美的效果!
用最简单的造型表达出最美的效果,时尚而不缺乏美感,根据不同的居住人群需求,充分利用各个空间,达到协调的、完美的效果!
网址:空间设计是室内设计的“灵魂”和“精髓” https://c.jiaju82.com/news-view-id-697821.html

