富力又一城-欧式
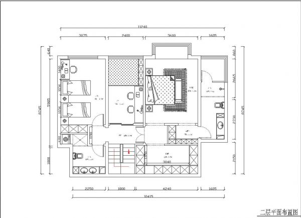
本套案例是一个四口的幸福之家,在跟客户的接触当中了解到,女主人是一个北飘族,在经过自己努力奋斗以后获得了成功,组建了自己幸福美满的家庭。跟业主深入的了解之后,比较喜欢这种欧式的感觉。因此做了这种感觉的设计。希望他们能够越来越幸福
本套案例是一个四口的幸福之家,在跟客户的接触当中了解到,女主人是一个北飘族,在经过自己努力奋斗以后获得了成功,组建了自己幸福美满的家庭。跟业主深入的了解之后,比较喜欢这种欧式的感觉。因此做了这种感觉的设计。希望他们能够越来越幸福
本套案例是一个四口的幸福之家,在跟客户的接触当中了解到,女主人是一个北飘族,在经过自己努力奋斗以后获得了成功,组建了自己幸福美满的家庭。跟业主深入的了解之后,比较喜欢这种欧式的感觉。因此做了这种感觉的设计。希望他们能够越来越幸福
本套案例是一个四口的幸福之家,在跟客户的接触当中了解到,女主人是一个北飘族,在经过自己努力奋斗以后获得了成功,组建了自己幸福美满的家庭。跟业主深入的了解之后,比较喜欢这种欧式的感觉。因此做了这种感觉的设计。希望他们能够越来越幸福
本套案例是一个四口的幸福之家,在跟客户的接触当中了解到,女主人是一个北飘族,在经过自己努力奋斗以后获得了成功,组建了自己幸福美满的家庭。跟业主深入的了解之后,比较喜欢这种欧式的感觉。因此做了这种感觉的设计。希望他们能够越来越幸福
本套案例是一个四口的幸福之家,在跟客户的接触当中了解到,女主人是一个北飘族,在经过自己努力奋斗以后获得了成功,组建了自己幸福美满的家庭。跟业主深入的了解之后,比较喜欢这种欧式的感觉。因此做了这种感觉的设计。希望他们能够越来越幸福
本套案例是一个四口的幸福之家,在跟客户的接触当中了解到,女主人是一个北飘族,在经过自己努力奋斗以后获得了成功,组建了自己幸福美满的家庭。跟业主深入的了解之后,比较喜欢这种欧式的感觉。因此做了这种感觉的设计。希望他们能够越来越幸福
网址:富力又一城-欧式 https://c.jiaju82.com/news-view-id-697778.html

