【雅宝公寓】现代简约 跃层/loft 200
发布时间:2020-04-14 01:01
案例详情 本案设计是现代简约风格,在现代的繁华时代的都市,现代风格尤为让年轻人追捧,简单的线条,简单的颜色,简单的风格让疲惫的业主回到家有种解放的感觉。
为合理利用空间。书房左侧做了整体书柜储物架,地毯和沙发的匹配,提供休息区域。做到轻松的方式去学习
厨房因满足客户需求,定制整体橱柜,储物空间多而不杂,顶面吊灯角落分布均匀,全方位满足业主要求
女儿房,做了书柜储物架,整体以粉色系为主,布满娃娃的房间搭配粉色美少女壁纸,满足小主人公主梦
深色木制地板搭配棕色电视柜,大理石的电视背景墙及角落里的摆放的钢琴,让整个客厅搭配不失奢华且温馨.
主体色为白色,整体以浅色为主,灰色的床单及浅蓝色沙发。搭配绿植,给人在空间里一种放松,自然的感觉
书房做了展示柜及书柜一体化设计。斜顶的造型搭配美式吊灯。空间内放了一张休息小床。可以小歇而用
二层分别为男孩房,女儿房,活动休闲区。主卧衣帽间的需求。充分为一家人考虑。营造舒适温馨的家庭居住环境。
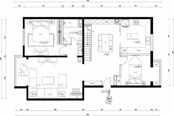
本案为一家人。匹配了厨房,保姆间,老人房,为保姆照顾老人方便而想。满足业主需求
网址:【雅宝公寓】现代简约 跃层/loft 200 https://c.jiaju82.com/news-view-id-697650.html

