大而不空、厚而不重,有格调又不显压抑
发布时间:2020-04-13 21:01
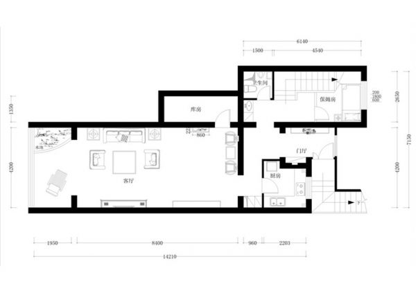
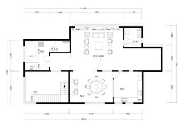
案例详情 项目名称:西山林语 设计风格:现代简约设计单位:实创装饰集团整体家装:装修一口价、闭口合同家装类型:实用3系施工工期:50天工程面积:101平米房屋类型:5室3厅1厨2卫3系整体造价:303999.4元(设计+硬装)设计说明: 新中式风格非常讲究空间的层次感,在需要隔绝视线的地方,则使用中式的屏风或窗棂、中式木门、工艺隔断、简约化的中式“博古架”,通过这种新的分隔方式,单元式住宅就展现出中式家居的层次之美。再以一些简约的造型为基础,添加了中式元素,使整体空间感觉更加丰富,大而不空、厚而不重,有格调又不显压抑。客厅:中式风格的古色古香与现代风格的简单素雅自然衔接,使生活的实用性和对传统文化的追求同时得到了满足。影视墙的造型简洁现代,却在醒目位置饰以中式书法,这种绝妙的组合给人以强烈的视觉意志力,成为时尚与古典的柔媚结合。居室:居室在色彩方面秉承了传统古典风格的典雅和华贵,但与之不同的是加入了很多现代元素,呈现着时尚的特征。在配饰的选择方面更为简洁,少了许多奢华的装饰,更加流畅地表达出传统文化中的精髓。
大而不空、厚而不重,有格调又不显压抑
大而不空、厚而不重,有格调又不显压抑
大而不空、厚而不重,有格调又不显压抑
大而不空、厚而不重,有格调又不显压抑
大而不空、厚而不重,有格调又不显压抑
大而不空、厚而不重,有格调又不显压抑
大而不空、厚而不重,有格调又不显压抑
大而不空、厚而不重,有格调又不显压抑
大而不空、厚而不重,有格调又不显压抑
大而不空、厚而不重,有格调又不显压抑
网址:大而不空、厚而不重,有格调又不显压抑 https://c.jiaju82.com/news-view-id-697608.html

