质朴与时尚的交融府前官邸126平现代简约
发布时间:2020-04-13 20:01
案例详情 宁静、清雅、放松的居住氛围是大多数人的居住梦想,在家融入浓郁的自然气息,无疑将让居者身心得以放松。本案以东南亚风格为主基调,通过亚麻色的色调和大量的实木材质,让家中呈现一种自然的质朴感,并巧妙地利用现代元素,把空间质朴与时尚完美交融。在崇尚自然、追求健康环保以及个性化表现的当下,质朴与时尚相融合的设计正中人们下怀。设计师/部门 丛晶/中心六部 装修风格 现代简约 套餐 688 总造价 161910元 户型/代号 三室两厅一厨两卫 面积 126平米 套餐造价及类型 688套餐: 95760元 套餐外增项造价 66150元(含水电路改造,造型顶等) 项目名称 (即小区) 府前官邸小区 所在城市+区县 北京怀柔区 业主背景和需求 业主是一对夫妇及两个女儿.空间设计需求:简洁大方,既要装饰感又不繁琐的居住空间,整体配合曲美实木系列家具,打造一个温馨舒适的家.
整面的原木色软包墙和实木餐桌,在绿植的点缀下为餐厅营造了自然舒服的就餐环境,而横向的镜面与精美华丽的水晶吊灯,提升了空间的时尚感,让自然的质朴与现代的时尚完美交融。
顶面纵横交错的格木梁,丰富了客厅大而低的空间感;而沙发背景墙上的铜色镜面处理,避免了素色调与质朴材质带来的沉闷感,让空间显得自然舒适且时尚独特。
简单的是木线条收边,加上局部的铜色镜面处理,增加了空间的通透感与变幻感,而适度的留白,则为观看电视提供了纯净的背景空间。
顶面井子格木梁的处理丰富了客厅大而低的空间感,空间分割上也有别于餐厅,卡色软包墙面处理与镜子相结合,展现了一个个性的沙发背景墙.
直线顶面间接光源的吊顶与整体墙面素色暗花壁纸的铺贴结合床头软包的处理,让整个睡眠空间温馨,柔和.
不需要特殊的造型,花式吊灯,拼接色的窗帘,夸张大纹样的壁纸,静谧简单大方的大女儿房体现再眼前了.
简约不简单的无色彩空间,用黑白两种砖,区域不同手法的铺贴手法,让平淡的黑白色在墙面,地面如跳跃的音符一样给你不一样的节奏感,配合英皇的智能浴缸,智能坐便器黑白洁具,整个空间个性分明.
不同材质的白色,石材,橱柜,吊顶,所有的这些为的就是一个干净不躁热的厨房
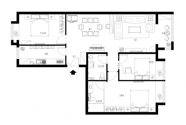
原始户型图
平面布置图
网址:质朴与时尚的交融府前官邸126平现代简约 https://c.jiaju82.com/news-view-id-697584.html

