38平装出大气派单身居所
发布时间:2020-04-13 19:01
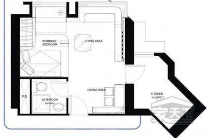
案例详情 38平米的小空间为何要具备这么多功能?原因是为了满足屋主多方面的愿望。屋主是一位电影狂热份子,他要把家居变成私人影院;还要能提供一个舒适的工作、身处饮食及宴客的环境。 爱电影的人在居室设计方面一定要先满足他们对视听享受的要求。设计师于室内中央特别预留位置予投映机、大投射幕及音响组合,之后再摆放不同的家具如工作桌、bar台、储物柜于周边。这样即使屋子虽小仍可享受宽银幕,屋主看电影时只要关掉窗帘,便能体验影院的气氛。
网址:38平装出大气派单身居所 https://c.jiaju82.com/news-view-id-697569.html

