观唐别墅-中式风格-博洛尼整体家装
发布时间:2020-04-13 17:01
案例详情 本案设计以现代新中式为主线,以线条呈现空间感,以黑橡木为家具主色增加中式的沉重感,金色点缀色增加富贵感,局部配以中式元素或家具,地面采用浅灰色石材与黑色线条波打线,与顶面上下呼应,使空间稳重但不沉闷;入户玄关选用中式元素线条造型,墙面水墨石材画与金箔背景遥相争辉,顶面吊灯像千鸟飞过,仿佛置身大自然之中;客厅更是以山河为背景,飘渺的石材画为点睛,竹枝,净瓶,地毯为雪,花鸟为春,在客厅中便收获了四季。
客厅设计初衷以山河为背景,飘渺的石材画为点睛,竹枝,净瓶,地毯为雪,花鸟为春,在客厅中便收获了四季
日式的茶室在B2层的下沉庭院旁,庭院内以枯山水的造景方式布置,墙面大量的绿色植被覆盖,落地的大玻璃窗与榻榻米高度同步,当雨落下的时候泡上一壶茶静听雨声再好不过了。
在书房的设计上中式元素更浓一些,整个书房划分成虚实两个空间,靠近里侧是独立的佛堂,而用于分隔的屏风采用双面丝质抽象山水为主题,轻盈而若隐若现。
主卧室背景采用丝质花鸟的软包与木质屏扇相结合,整个空间色调用深色处理,让空间更安静沉稳,同时现代布艺的家私加入给空间带来了更多的舒适感。
开放式的厨房与餐厅相结合在一个空间,颜色和材质的选择上采用了黑橡木单板与奶油灰烤漆相结合,配合造型的水晶灯,既沉重又时尚;而顶面的线条与石材地面的波打线相互呼应,让空间更完整。
入户玄关选用中式元素线条造型,墙面水墨石材画与金箔背景遥相争辉,顶面吊灯像千鸟飞过,仿佛置身大自然之中;顶面的吊顶方式采用了圆形吊顶,与两侧的垭口和地面的空间形成鲜明的对比。
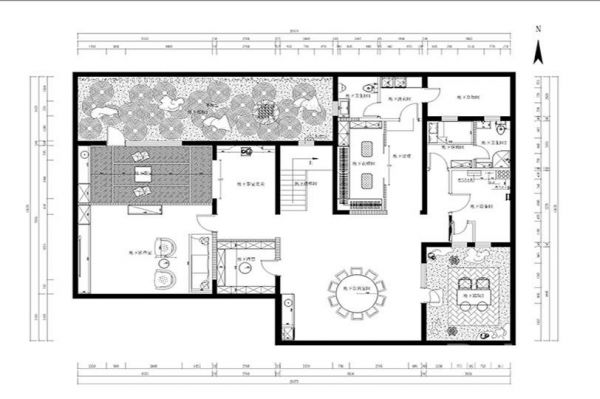
B2的空间作为主要的活动区域非常重要,布局上划分了两个茶室,中式和日式,同时增加了影院和活动餐厅;并布置了储物和洗衣房的功能,包括了设备间。
此套案例为客户的第二居所,主要用于接待一些朋友,在一层保留了两间客房,厨房与餐厅也做成了开放的空间。
网址:观唐别墅-中式风格-博洛尼整体家装 https://c.jiaju82.com/news-view-id-697501.html

