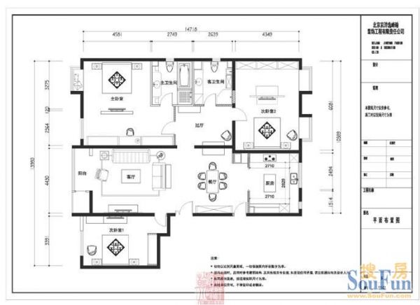
首开·国风上观-欧美风情-三居室
发布时间:2020-04-13 16:03
案例详情 设计将古典欧式的豪华、优雅、和谐、浪漫的特点发挥的游刃有余,与此同时又屛弃了过于复杂的肌理和装饰,简化了线条。其核心是营造出一个雍容华贵又充满艺术氛围的家。
网址:首开·国风上观-欧美风情-三居室 https://c.jiaju82.com/news-view-id-697485.html

