心情感其愉悦,使人心旷神怡
发布时间:2020-04-13 16:02
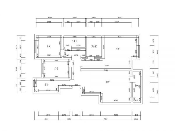
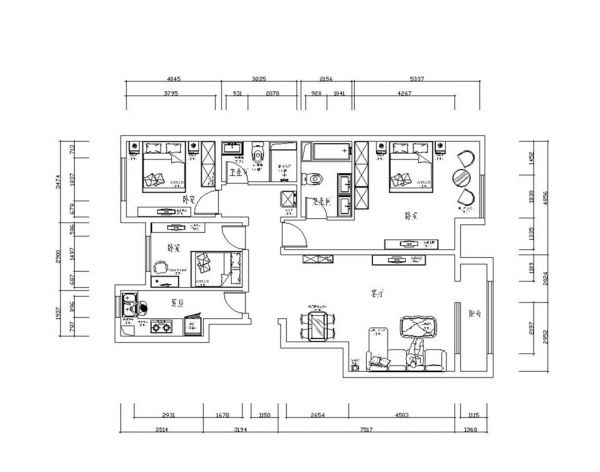
案例详情 项目名称:保利花园 设计风格:现代简约设计单位:实创装饰集团整体家装:装修一口价、闭口合同家装类型:实用3系施工工期:50天工程面积:115平米房屋类型:3室2厅1厨1卫3系整体造价:98088元(设计+硬装)设计说明:本设计方案采用欧式风格的表现手法,以繁华都市背景为写照,而又远离都市重金属的感觉。让您身临其境却没有紧张、急切的心情,带给您的是一种温馨和谐的心情,让心情感其愉悦,使人心旷神怡。再加上此户型规矩方正,电视幕墙以简单石膏板欧式造型来突出,简洁而又不失高雅。章显您高贵身份,给您带来与众不同的居住环境。
心情感其愉悦,使人心旷神怡
心情感其愉悦,使人心旷神怡
心情感其愉悦,使人心旷神怡
心情感其愉悦,使人心旷神怡
心情感其愉悦,使人心旷神怡
心情感其愉悦,使人心旷神怡
网址:心情感其愉悦,使人心旷神怡 https://c.jiaju82.com/news-view-id-697482.html

