装修美图 | 南华园 136 平米现代风格简洁明快的调调 (8)张
发布时间:2020-04-13 06:23
徐学敏(主任设计师)主要作品保利大明湖 领秀城中央公园 名士豪庭 绿城百合 力高国际 翡翠清河从业年龄7毕业院校山东工艺美院工作经历2008年至今所获奖项蜂巢设计师:徐学敏
设计理念:严谨、创新、生命讲质量
从业年龄:7年
工作经历:2008年至今
主要作品:保利大明湖 领秀城中央公园 名士豪庭 绿城百合 力高国际 中海国际社区 翡翠清河
客厅
客厅
客厅
餐厅
玄关
儿童房 | 1533174239e461ec-8
儿童房
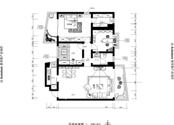
户型图济南分公司峰巢精品设计中心城市:济南地址:济南市二环东路877号峰格汇家居一楼介绍:峰巢设计中心成立于2009年3月,前身为燕山精品设计中心,店面吸纳了业之峰多位资深设计师,位于峰格汇家居一楼。
2014年度,上半年,总体测评第一店;全年业绩排名第二店;2015年目标,业之峰济南第一店!
感谢您对我们的信赖与选择,我们必将用实际行动为您实现环保家装梦想!
更多案例网址:装修美图 | 南华园 136 平米现代风格简洁明快的调调 (8)张 https://c.jiaju82.com/news-view-id-697337.html

