【金科天玺】其他 别墅 800㎡
发布时间:2020-04-12 10:01
案例详情 新古典风格,选用带有高级感的中性色,整体是以驼色,象牙白,奶咖色,炭灰色为主,低调却不失奢华,给人简约,时尚且富有轻奢感觉,令空间质感更为饱满,根据业主需求,进门设计了玄关墙,调整了整个房间的动线
主卫生间墙地砖用的同一花色,让整个空间看上去更整体,以前色系为主,柜体选用带有拉丝铜的造型,整体更有细节
儿童房设计,主色调是以灰蓝,奶咖色为主,床头背景以硬包的形式呈现,对面加以艺术壁画设计,吊灯为主光源,四周回型顶筒灯点光源辅助
主卧空间是以浅色系为主,地板选用了偏深一点的拼花,更突出浅色家具的感觉,整个空间主次分明,加以水晶吊灯修饰
客厅空间以驼色,象牙白为主,业主比较喜欢稍微带有古典的感觉,所以加了一点铜线,在后期选壁灯,软装家具上会带有一些古典的造型
书房设计,两排象牙白书柜,也是深色拼花地板,更突出浅色书桌家具,主光源吊灯,顶面圈顶设计,加上辅助光源
二层设计了2个客房,书房,活动室,家庭室,楼梯上来,家庭厅延申书房推拉门设计,整个空间感更通透整体
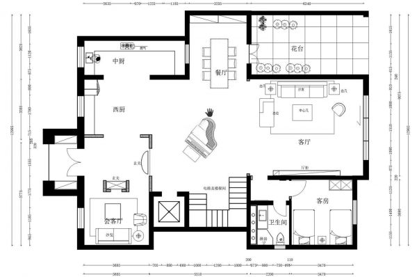
一层平面,客厅,餐厅,中厨西厨,客房,小会客厅,中间摆放一台钢琴,整体的违和感更强,进门处设计了玄关,调整了动线走向
网址:【金科天玺】其他 别墅 800㎡ https://c.jiaju82.com/news-view-id-697296.html

