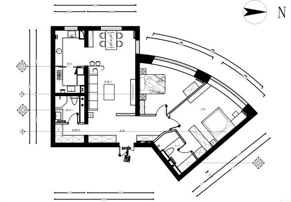
【丰侨公寓】现代简约 二居室 110㎡
发布时间:2020-04-12 10:01
案例详情 整体风格室现代风格,整体配色是以奶油灰,哑光白为主,加以铜拉丝装饰,是整个空间看起来更精致,客厅空间进深尺寸较大,所以在厨房外面设计了西厨,让整个空间看起来更和谐
客厅电视墙面是以灰色装饰石膏线修饰,进门设计了铜拉丝框玄关,顶面原定设计,以主光源主灯
客厅和餐厅在一个空间里,进门使整个空间更宽阔,通透,加上金属吊灯,异型茶几打破了规规矩矩的直观,使整个空间更富有活力
客房空间比较小,所以颜色方面主要是以灰色,白色为主,地板颜色选的也不是很深,看起来空间很明亮,给人感觉不是很小
厨房的设计,是用玻璃联动推拉门把中厨和西厨隔开,因为是现代风格,所以橱柜选用了白色墨尔本样式
卫生间设计,根据业主的日常需求和生活习惯,浴室柜设计的尺寸很大,墙面瓷砖是白色带有灰花纹的纹理,使卫生间更整洁明亮
本案的户型不是很规整,而且整体造型是有弧形的。所以客卧的面积不是很大,本案把可我的门移到了右边,这样床边的空间会更宽阔
网址:【丰侨公寓】现代简约 二居室 110㎡ https://c.jiaju82.com/news-view-id-697293.html

