设计案例 | 鲁能七号院 85 平米现代风格浪漫之吻 (4)张
发布时间:2020-04-06 06:12
孙燕 (高级设计师)主要作品博雅西园、鹭峯国际、汤HOUSE、金色漫香苑、领秀慧谷、华侨城、金隅澜湾、中粮祥云、逸成东苑、首创澜茵山、首开熙悦山、华城•滨河世家…………从业年龄10年毕业院校鲁迅美院 室内设计专业工作经历2005年工作至今所获奖项2006年首届中国室内设计艺术观摩展优秀奖。
2009年度美化家居大奖赛二等奖。
2010年“箭牌”杯全国大奖赛第八名。
2011年“瑞士卢森杯”设计大赛最佳设计奖。
2013年业之峰“用心杯”十佳设计师。
客厅
卧室 | 主卧室
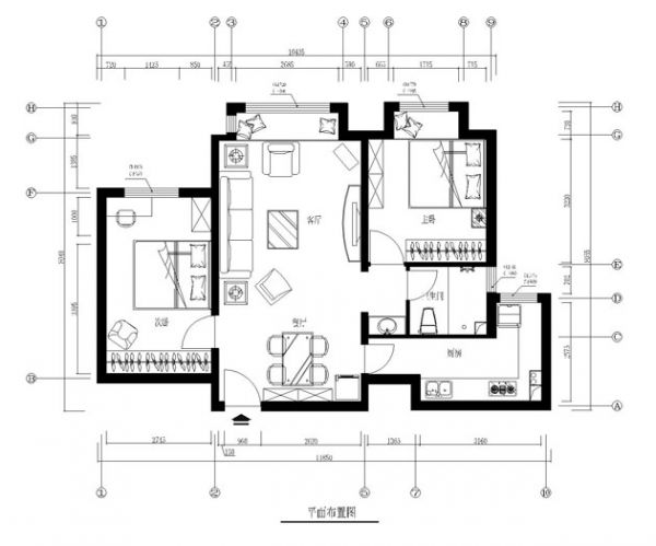
户型图
户型图北五环峰品精品设计中心城市:北京地址:北京市朝阳区北苑路甲1号介绍: 北五环峰品精品设计中心,前身为业之峰装饰北京分公司北苑设计中心,位于北京市朝阳区北苑路甲1号峰格汇家居三层,自创立以来一直致力于家居设计方面的专业研究,并以其新潮的设计思想、以人为本的设计理念、无微不至的售后服务在京城广大消费者中留下了深刻的印象和良好的口碑。峰格汇设计中心现拥有设计师10余名,他们有着丰富的家装设计经验,平均从业时间超过5年,是京城业内具备较强设计实力的优秀团队。
北五环峰品精品设计中心实行小组式团队协作,以业之峰独有的完整家居服务模式为依托,在不断沟通与交流过程中,让客户省心省力做装修,并能享受到一流的“蓝钻”服务。针对每个客户集思广益,共同探讨、设计、创意家装方案,为客户打造理想、舒适、完美家居;峰格汇设计中心所要给您的不仅仅是一个温馨舒适的家园,更是一种健康无忧的生活环境,我们所能给予您的是一种高品质的贵族生活!
业之峰装饰,让您的家与众不同!
网址:设计案例 | 鲁能七号院 85 平米现代风格浪漫之吻 (4)张 https://c.jiaju82.com/news-view-id-696427.html

