设计案例 | 领袖硅谷 280 平米美式风格美式设计中的浪漫气息 (8)张
发布时间:2020-03-29 06:15
白玉萍(主任设计师)主要作品牛驼温泉孔雀城、孔雀城剑桥郡、西山艺境、花盛香缇别墅、天恒别墅山、远洋山水、百万庄、金地仰山、金地朗月、建邦华庭、红木林、首开熙悦山、汤泉墅、保利罗兰、珠光御景、新纪元家园、首邑溪谷、融景城、龙湖时代从业年龄5年毕业院校石家庄建筑工程学院,进修于清华美院工作经历2011年工作至今所获奖项2011“箭牌杯”家居设计大赛二等奖。
2012中国十佳住宅设计师优秀奖。
2013“欧派杯”全国厨房设计大赛优胜奖。
2014峰翼设计师之家嘉宾设计师。
客厅
餐厅
卧室 | 二层卧室
卧室 | 三层卧室
衣帽间 | 二层衣帽间
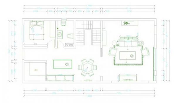
户型图
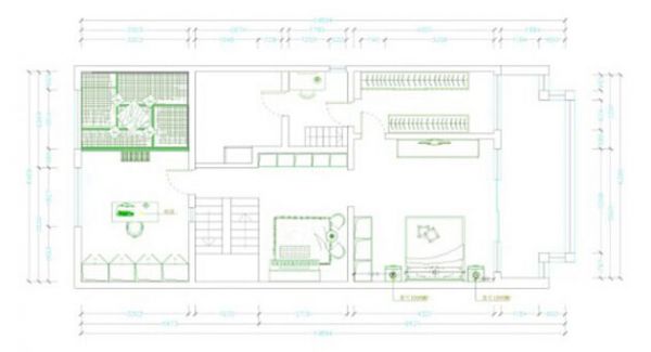
户型图
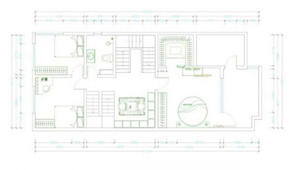
户型图西四环西峰尚设计中心城市:北京地址:丰台区西四环中路77号峰格汇家居介绍:店内店内拥有3+2、典藏、外拓记录工作室。设计力量雄厚,经验丰富。我们用专业的思考和完善的服务为您打造居室的每一处空间。家就是一个让人从身体和感官都能感受到“爱”的地方,用心去设计,让爱感动生活。我们充满了激情,我们充满了自信。只要您相信我们,我们会让您感爱到无处不在的关爱。
更多案例网址:设计案例 | 领袖硅谷 280 平米美式风格美式设计中的浪漫气息 (8)张 https://c.jiaju82.com/news-view-id-695329.html

