装修美图 | 华润·翡翠城 150 平米现代风格翡翠城-三居-现代风格 (5)张
发布时间:2020-03-24 06:21
罗超东(设计师)主要作品华侨城,翡翠城,金沙里,华润二十四城,龙湾半岛,檀香花园,中信未来城,锦城世家,保利198,仁和春天大道.城南一号等从业年龄10年毕业院校川农大园林系室内设计专业工作经历2000—2004年毕业于川农大园林系室内设计专业。所获奖项中国装饰协会注册设计师,获08年最佳空间设计奖,最佳软装搭配奖,及业之峰最佳新锐设计奖等。
卧室
餐厅
客厅
客厅
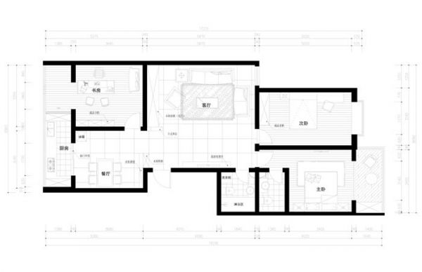
户型图西门博美精品设计中心城市:成都地址:金牛区1环路西三段花牌坊街319号博美装饰城B区3楼10号介绍:成都业之峰西门店是“业之峰”初入成都市场就成立的店面之一,是成都分公司在西南片区的一面旗帜。作为公司支柱店面,为蓉城客户提供着专业的设计以及优质的服务。同时高质量的工程,让我们迅速占领了成都家装市场的主要份额,得到良好的口碑,大大提高了公司知名度,并多次荣获公司“最佳店面”的荣誉称号。我们年青、我们专业、我们敬业!不管您是业之峰的新客户还是老朋友,业之峰西门博美店全体同仁恭候您的光临,我们将为您提供更多、更好、更舒心的服务。
更多案例网址:装修美图 | 华润·翡翠城 150 平米现代风格翡翠城-三居-现代风格 (5)张 https://c.jiaju82.com/news-view-id-694577.html

