设计案例 | 泛海国际居住区 158 平米新古典风格后现代简约的奢华 (7)张
发布时间:2019-12-17 10:52
李利平(首席设计师)主要作品奥林匹克花园别墅,东方阳光城别墅,宜家汤臣别墅,怡景花园,东湖天下, 东湖上领,滨江苑,时代豪苑,东方帝园,中一花园,天下国际公馆…….从业年龄13年毕业院校湖北美术学院工作经历2002年工作至今所获奖项2005年“华景.春天”设计大赛银奖。
2006年“圣象杯”设计大赛银奖。
2007年业之峰签单冠军,设计亚军,十大金牌设计师。
客厅
餐厅
卧室
餐厅
客厅
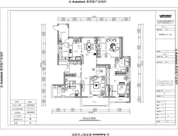
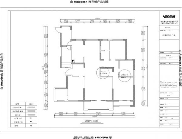
户型图
户型图峰格汇家居•总部精品设计中心城市:武汉地址:发展大道常码头33号•峰格汇家居四楼(复兴一村168酒店对面)介绍:峰格汇家居·峰品设计院简介
峰格汇家居位于交通便利、四通八达的发展大道上,临近高架桥。店内总面积接近万平方米,设计区域和主材展示区域布局合理,处处渲染出极深的艺术氛围。
峰格汇家居为客户提供了一个独特的、高档的、便捷的消费环境。用心打造了一个主材销售于设计为一体的一站式消费模式。峰格汇家居集合3大设计中心:峰翼高端设计中心,峰格设计中心,峰品设计中心。三大中心实力强大,为业之峰中流砥柱。
在装饰行业日趋同质化的环境下,市场的供给能力超过了市场的实际需求,消费者的选择日趋科学性、合理性,选择越具个性化,这就需要设计师的整体水平不断提高。峰格汇家居设计院是一个充满活力和激情的团队,现已成立了专家工作室,工作室广泛吸纳不同风格的高水平设计师加盟,他们大部分毕业于湖北工学院、中央美院等知名院校;公司通过多方位的系统培训全面提升了设计师的专业服务水平和服务意识。在平时的学习工作中,他们积极参与公司组织的展会、小区开发等活动;准时准点上门为客户量房,加班加点赶做方案,碰到高难度的设计科目,同事与同事间会自发的成立小组讨论。不放过对每一个细节的推敲,面面俱到的保证了服务的善始善终。客户满意是评价我们工作的唯一标准,看到工作室排放的锦旗与奖杯,足以证明2013年是收获的一年!
2014年作为武汉分公司“新生”力量将以饱满的热情迎接新的挑战!
网址:设计案例 | 泛海国际居住区 158 平米新古典风格后现代简约的奢华 (7)张 https://c.jiaju82.com/news-view-id-681481.html

