设计案例 | 新华苑 120 平米现代风格旧房改造现代风格 (6)张
发布时间:2019-12-13 18:55
赵智涛(主任设计师)主要作品青岛——风和日丽、凤凰城、麦岛金岸、凭海临风。烟台——龙门花园。潍坊——大观天下、潍京、宝通六号、临海国际、金域华府、帝景苑。从业年龄6年毕业院校青岛理工大学工作经历2008年工作至今
餐厅
餐厅
客厅
儿童房
卧室
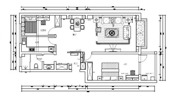
户型图潍坊泰华精品设计中心城市:潍坊地址:潍坊市东风东街360号世纪泰华商务大厦A座708室介绍:北京业之峰装饰(集团)有限公司成立于1997年,具有国家施工二级资质,设计乙级资质,是一家主要从事住宅及大型公用建筑的设计、装修和施工,同时兼营网站、金融、建筑与装饰材料及房地产等相关业务的大型综合性企业。公司在北京、天津、大连、郑州、南京、成都、武汉等大中型城市建立了直营分公司,拥有超过八十家的加盟分公司,服务网络遍布全国各地。业无止境,勇攀高峰。业之峰装饰秉承以客户满意为中心,以品牌形象为先导,以优秀人才为基础,以精湛设计为龙头,以优质质量为保证的经营和服务理念,通过技术创新,系统整合提升了公司的设计实力、材料及工程管理、施工工艺以及各项监管制度、售后服务和完整家居服务,一直引领家装行业的时尚和潮流。北京业之峰装饰潍坊分公司位于风景秀丽的风筝之都潍坊,是北京业之峰装饰集团国内的第二十六家分公司。业之峰潍坊分公司于2011年10月1日正式成立,是潍坊家装市场规模最大的直营性质的家装公司。业之峰蓝钻工程开启了潍坊环保家装的新时代,让鸢都人民享受到业之峰“专业服务.全国同步”的高品质家居服务。从而为鸢都的装饰业带来勃勃生机。
潍坊业之峰诺华装饰有限公司的成立开创了鸢都环保家装模式的新纪元,同时也促进了鸢都人民追求健康生活理念的新步伐。“客户满意”是衡量我们工作的唯一标准,潍坊业之峰人会一直秉承这一理念,做鸢都人民信得过的家装品牌,为鸢都营造一个温馨、健康的绿色家园。潍坊业之峰以“追求卓越、和谐共享、创造高品质生活”为己任,以成为“中国家居产业持续领跑者”为愿景,将不断为鸢都人民提供高性价比的家居服务,为鸢都家居行业持续贡献力量。更多案例网址:设计案例 | 新华苑 120 平米现代风格旧房改造现代风格 (6)张 https://c.jiaju82.com/news-view-id-681034.html

