始本户型创造出小型豪宅的大气度。
发布时间:2019-12-08 10:03
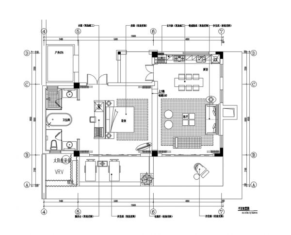
案例详情 以面积而言是一个小而美,小而精的个性化风格,全板房的设计想法运用小户型的技能分配方式,并注重空间收纳机能的安排。而色系是以较亮的粉牙白配上各种不同变化的原木或贴面木饰面,以利用木的温暖来传达小空间的轻松及现代的生活效率,总体的设计重点在表达客厅的一体化轴线安排,始本户型创造出小型豪宅的大气度。
卧室 银白色的床头可以将空间打造的层次感十足,在亮白色的背景下,白百何色的·床品更加显亮。家具配置虽然简约依然彰显着时尚的格调,墙面挂画的爱马仕橙配合冰川灰,反差对比令空间具有现代艺术感,点睛提神
卫生间以及卧室收纳采用如厕,洗浴,更衣,收纳,四式分离的设计手法,有效增加了卫生间使用的的功能性。简单时尚大气,为了配合空间的特质,选择暖灰色大理石作为背景色,与彰显简洁的白色大理石地面形成对比,灌注温馨质感。
客厅 在这套案例中,亮白色墙壁围绕下的居室空间里,金属门框加上铁制品的组合搭配,十分的具备现代化气息。简约随性的装饰挂画和系列家居单品明朗分布,配合室内充足的光线和个性化元素,让整个空间显得新颖别致,时尚有趣。
厨房 开放式厨房将餐厅和客厅连接起来,现代简约家居处处流露出时尚高雅的中国风,餐厅吊灯与餐桌的迎合,更添加了中国风韵。LDK一体化,更多了一些人性化的关怀,整体上增添了空间的开阔性,让人即使实在做饭时也可以随时交流,设计至上增添人性关怀。
以面积而言是一个小而美,小而精的个性化风格,全板房的设计想法运用小户型的技能分配方式
网址:始本户型创造出小型豪宅的大气度。 https://c.jiaju82.com/news-view-id-679769.html

