上海绘仕建筑设计事务所新作|透明又有亲和力的献血中心
人们想到献血站,少有让人愉悦的回忆:难以辨认的狭窄门面,堆积的器材杂物,沉闷的空间氛围以及被动封闭式的献血流程。
然而献血这一无私的行为理应得到善待和关怀,一座献血站应该如同一个健康体验中心,这里呈现的是欢迎的姿态,安心的氛围,通过空间的设计和交互设计体现出一种不同于人们传统印象中的气氛,能舒缓甚至能让人忘记献血本身带来的紧张,甚至于获得愉悦的体验。虽然项目面对极为紧张的造价和时间的限制,绘仕设计仍然坚持从现实的缝隙中发掘设计,意图改变人们对献血站的糟糕印象。
▼项目外观

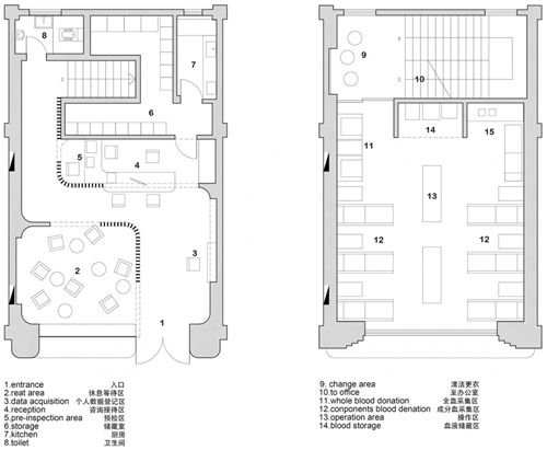
廊坊市中心献血站整个空间布局由入口区,休息区,前台准备区及献血区四个模块组成,每一个模块在空间中的作用除了基本的功能之外都有相应的设计意图,而这四个模块由公共逐渐私密,组成了该献血中心空间的基因。
▼轴测图

立面入口
从潜在献血人群角度分析,一个标志性的立面应该能让人们注意到献血中心的特殊存在,一个友好的立面能拉近献血空间和个人之间的距离感,这两者的结合旨在吸引更多的潜在献血人群的关注。因此,我们采取了即强调了形象的标志性又弱化室内室外界限的设计策略,外立面覆盖白色的穿孔板,不传递出过分强势的形象但又依靠白色清晰地传递出医疗属性,而半透明的肌理配合弧形转角柔化了立面,如同可以呼吸的皮肤。
▼入口立面

休息区
我们希望一层的空间不仅仅只是完成献血之前的准备工作,因为它临街的先天条件,具备了更多的公共性,我们意图借此探索一种不同于以往目的性很强的等待模式,而是将休息区布置成一个类似咖啡厅的形式,人们在这里面对面而坐,或者沟通,或者安静等待,也可以借助设置的无线充电,结合投影互动等装置增进对献血的了解和兴趣,通过通透的木格栅了解到前台区域的预检流程。而这里面的生活通过休息区通透的玻璃向街道上的人群展示,使得献血站呈现出一种社区中心的意义,和日常生活生成一种自然的默契。
▼休息区,透过玻璃与街道产生联系

前台准备区
开放透明是人们愿意停留的空间的特质,而人的活动各有所属而互不干扰是各项功能的要求,因此在一楼的设计当中,我们通过木质材料与座椅色彩的搭配在感官调性上传递温暖轻松的氛围,通透的木格栅作为空间划分的要素,既对人的献血流线做了清晰的引导,为初筛提供了私密性,也保证了前台的护士对休息区视线上的连续。所有空间均采用了圆弧形倒角设计最大程度避免了各类尖角所存在的安全隐患。去往献血区的各项准备活动从进门的一刻可以开始了,门厅右方设置了自助打表机和登记台,将流线分散避免人流的交叉和拥挤。
▼前台,与休息区通过木格栅分隔

▼护士操作区

▼通往二楼的楼梯
献血区
我们希望人在献血时人处在一个温馨放松的微环境之下,献血位上方的白色穿孔板呈现出一种朦胧的光感,后方的木色墙面缓解了献血的紧张心态。三层的办公室和献血区域视线贯通,护士可以及时发现献血区的情况并作出的应对。
▼二楼采血区

我们希望这个设计是一个起点,让献血融入到当今的信息时代,将线上和线下整合成一套连贯的体验,让冰冷的医疗功能空间呈现出一个开放透明又有亲和力的形象,成为人与人有关的传递温暖与关怀的媒介。
▼平面图

项目名称:廊坊市中心献血站
设计方:上海绘仕建筑设计事务所
联系邮箱:hillsdesign@163.com
项目设计&完成年份:2017
主创建筑师:任培英
项目地址:廊坊市三河市
建筑面积:160平方米
摄影版权:UnitU
合作方:深圳雪莲花网络有限公司,李政
客户:廊坊市中心血站
品牌:PVC木纹贴面;穿孔不锈钢板
网址:上海绘仕建筑设计事务所新作|透明又有亲和力的献血中心 https://c.jiaju82.com/news-view-id-675989.html

