西安万达One130㎡ 现代
发布时间:2019-09-12 10:01
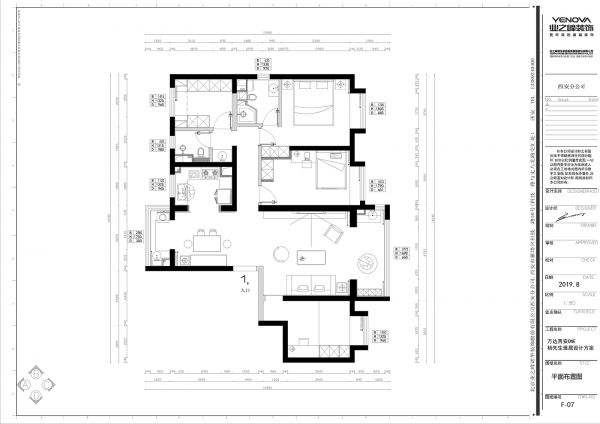
本案是四室两厅两卫的设计方案,将其中的一个房子设计成了衣帽间,有了更大的储物空间,客卫做了干湿分离,墙体整体改动部分较少,客餐厅南北通透,便于采光。

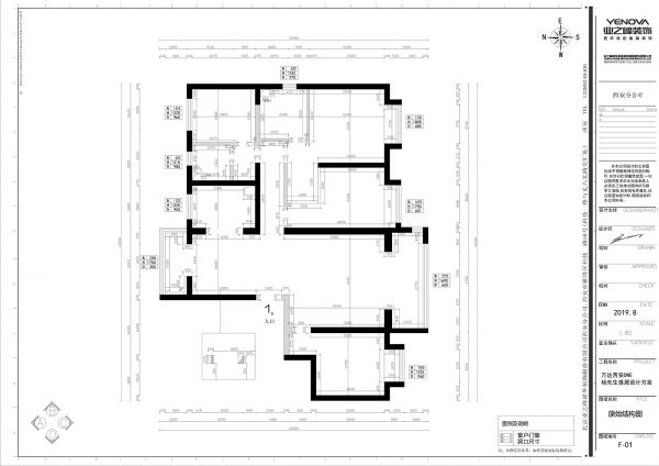
原始结构图

平面布置图

客厅
客厅和餐厅南北通透自然一体,中间以过道自然分开,圆茶几能更好的避免碰撞,因为餐厅客厅一体,显得空间较大,所以在沙发的旁边还配了边几,作为功能性兼装饰性的小原茶几,为空间增添更多趣味和变化。

客厅
客厅大体为暖色调,因为通体色系太过单调,沙发用了深色系来点缀,还用了圆茶几,它不规则的线条的优势更贴合人体曲线,不易伤及好动的儿童,同时又不会给人死板生硬的感觉。

餐厅

卧室
卧室的功能从未有太多的变化,它一直是睡眠、休息、存放衣物的主要场所,少量冷色调的背景墙显得整个空间更加有格调。
网址:西安万达One130㎡ 现代 https://c.jiaju82.com/news-view-id-664271.html

