领秀翡翠山 现代轻奢美式
发布时间:2019-09-10 10:01
案例详情 体会质感生活中的温暖,注重内心的自我品位升级的追求,对生活不将就不妥协融入品质家居的设计。用艺术美学与生活时尚融合的的完美身姿,与现代家居环境和轻奢美式家具和谐相融,装饰家的美好时光。
精致的材质构造,冷暖色的搭配,金属质感的点缀,营造了既温馨而又低调奢华的空间。空间上,南北通透,客厅、玄关、餐厅区域独立而又互相成一线。阳光,清风,穿堂入室,满心惬意。湖蓝色的静谧,添增了轻松与舒适感。
与客厅一体的餐厅,其空间感加效果更加突出。
透过敞开式的厨房,空间的互动与功能性和环境的融合,便捷随意的生活习性。橱柜与电器的色彩相同,饱满了色彩视觉空间。
次卧素色的硬包背景,仿石材的纹理,更加提升整体质感。
素色床品的选择吻合主题印象,窗帘的配色同样延续低调内敛的主题。
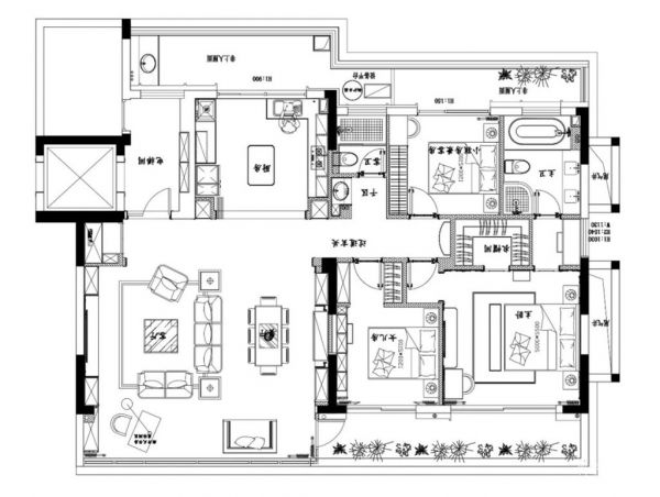
原装修房屋平面户型图
网址:领秀翡翠山 现代轻奢美式 https://c.jiaju82.com/news-view-id-663663.html

