用色彩连接空间与人的关系
发布时间:2019-09-08 22:01
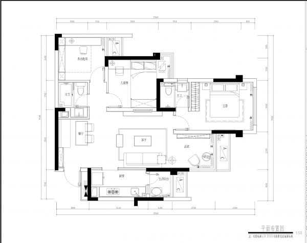
案例详情 年轻夫妻及一个孩子居住,以现代风格为主,整体色调为暖色调,要求有较多的功能性空间,来满足业主不用时间的需求
整体色调以暖色调为主,局部使用较深的咖色来增加空间的层次感,主次分明;家具以现代风格为主,搭配部分木本色元素,让空间更加的有温馨的质感
厨房以暖灰色调为主,搭配白色橱柜,让空间更加简洁干净
儿童房以组合型家具为主,增加储物空间;搭配树木纹理的壁纸及北欧原色的视频,让空间更加充满童趣
该空间以复合空间为主,书房及客房相结合;为节省空间及增加功能性,有做隐藏床来满足不同时间的不同需求;运用大量的木本色及米灰色,让整体色调更加柔和
满足空间的基本使用需求,使用了带有色彩的长条砖,让卫生间不那么单调
主卧室使用了较深的北京强,及胡桃色地板,从而搭配颜色较浅的家具,从而让空间主次分明;整体色调相对柔和,搭配带有橘色跳跃色画品,让空间增加亮点
远洋山水的平面布置图
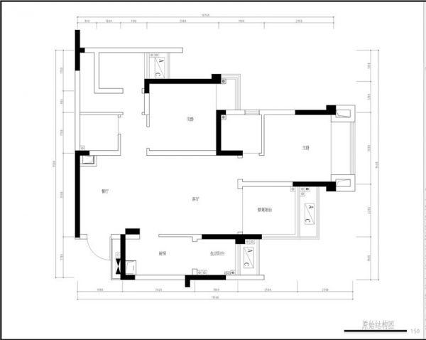
远洋山水的原始平面图
网址:用色彩连接空间与人的关系 https://c.jiaju82.com/news-view-id-663275.html

