首创悦欣汇 北欧风
发布时间:2019-09-08 18:02
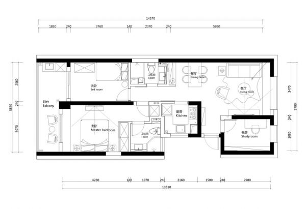
案例详情 房子建筑面积88平,除去墙壁只有71,绝大部分的墙是承重墙。再加上小区不允许包阳台,导致空间布局需要极其精打细算。次卫面积小且暗。小卫生间的存在占空间、挡光线,而且马桶预留管道的位置会离门很近。
夹边套的客厅朝向偏北,采光不是特别好,因此客厅的设计重点是明亮。轨道灯代替主灯,搭配大飘窗和色调轻浅的家具,轻盈不失温馨。
简单清爽的原木色餐厅,一旁增加了带水吧功能的餐边柜,加装咖啡机、净水器和自动热水壶等设备,幸福指数up up up。
4平米的厨房里抽拉龙头、大单槽、自动抽烟机、洗碗机、冰箱等设备一应俱全,很得妈妈的喜爱。橱柜配色与全户Tata的风格保持一致,墙砖地砖均选用了灰色水泥砖,沉稳耐脏。
主卧的床头柜、床靠背和飘窗是一体化设计,配合MUJI无靠背收纳床,整体风格清新简约。浅灰色的背景墙和水泥灯稍稍添了些清冷气息。
原装修房屋平面户型图
网址:首创悦欣汇 北欧风 https://c.jiaju82.com/news-view-id-663230.html

