质朴+简约+高级灰=气质!回归最真实的生活
"
世上只有一种英雄主义,就是在认清生活真相之后,依然热爱生活。by罗曼罗兰
"
无论每年的流行色怎么变化,高级灰总能占据一席之地,它是设计师手中的调色必备,也是现如今最被推崇的设计风格之一。
业主需求:本案为业主两代人共同居住,节假日会考虑亲戚朋友来聚会。色调上业主喜欢高级灰所带来的沉稳低调的氛围,空间规划上扩大餐厅功能,增加西厨。扩大客厅面积,一层空间的开阔感,增加了会客的舒适性。
设计理念:“质朴”+“简约”+“高级灰”=气质 整体设计以高级灰色为主,灰色本身所具有的低饱和度,容易让空间显得暗沉,所以大面积的玻璃窗带来充足的光线,也将室外自然引入,空间有种闲适的休闲感。低纯度的颜色视觉上更趋于沉稳,自然,情绪上给人安定的力量,让空间更具穿透性的作用去除繁杂,回归最真实的生活。
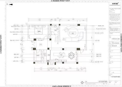
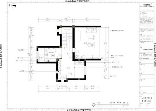
户 型 图


客 厅

高级灰色调的客厅布置的很有感觉,大气时尚, 很有情调感;灰色布艺沙发搭配欧式风格的灯轻奢风扑面而来,同时利用白色与高级灰的色调,搭配大理石、木地板等材质,为空间带来了质感和动感。大面积的落地窗也为室内空间带来更多的光线。
餐 厅

舒适的灰色调让整个家都有着非常大的亲和力,而几何拼接吊灯更是增添了室内动感的独特呈现。整体灰调气质非常的优雅,这也是高级灰的独特魅力所在!
卧 室

在卧室空间中,设计师利用相当素雅的色彩搭配,以优异的材质凸显出其奢华的、静谧的空间。卧室的家具选用也非常得恰当自然,床头的线性吊灯、台凳、床头柜、沙发椅等,都有着非比寻常的简约设计感,既不突兀,却又别有用心。
书 房

造型简约的家具,在稍显冷清的空间中起到了画龙点睛的作用。室内软装的搭配充满温度,无论是拼接地板、椅子,还是在墙上的挂画,都组合出一种具有艺术气息的搭配。
其 他

阳台上的灯光设计也是整个别墅设计的亮点,搭配墙面攀爬的绿植,使得夜色格外的撩人心弦!
网址:质朴+简约+高级灰=气质!回归最真实的生活 https://c.jiaju82.com/news-view-id-661905.html

