世华龙樾 现代风格
发布时间:2019-08-30 23:01
案例详情 年轻夫妻居住,喜欢黑白灰色调、现代感较强的空间设计;整体空间造型简洁,多以材料增加层次感;为满足收藏和读书的喜欢,有设计开放性书房,增加空间之前的互动感;
灰色石材背景墙及胡桃色地板,营造出整体色调相对较重的空间感,搭配深色电视柜及白色沙发,曾家空间的层次感;整体空间没有饱和度较高的家具及配饰,多以不同深度的灰色系列家具饰品进行层级的划分;
餐厅及厨房延续客餐厅的色调,整体以灰色调为主;为满足业主需求,将厨房
主卧除灰色调框架外,使用了黑色皮质的床,给空间更加沉稳的感觉;为达到业主想要的卧室效果,卧室不设有主灯,多以筒灯台灯辅助光源为主,因造出慵懒昏沉的氛围;
在灰色调的基础上,材料使用较多,层次感更加丰富
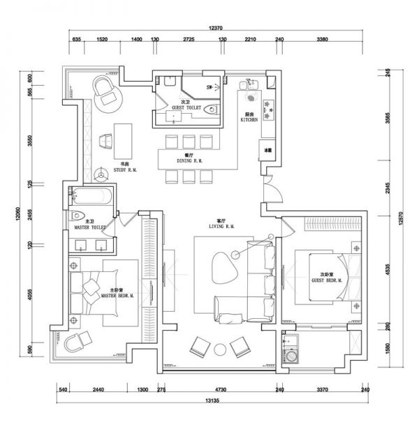
原装修房屋平面户型图
网址:世华龙樾 现代风格 https://c.jiaju82.com/news-view-id-661756.html

