威尔夏大道 浓浓现代风
发布时间:2019-08-30 21:01
案例详情 年轻夫妻及一个孩子居住,以现代风格为主,整体色调为暖色调,要求有较多的功能性空间,来满足业主不用时间的需求;
整体色调以暖色调为主,局部使用较深的咖色来增加空间的层次感,主次分明;家具以现代风格为主,搭配部分木本色元素,让空间更加的有温馨的质感;
儿童房以组合型家具为主,增加储物空间;搭配树木纹理的壁纸及北欧原色的视频,让空间更加充满童趣;
厨房以暖灰色调为主,搭配白色橱柜,让空间更加简洁干净;
主卧室使用了较深的北京强,及胡桃色地板,从而搭配颜色较浅的家具,从而让空间主次分明;整体色调相对柔和,搭配带有橘色跳跃色画品,让空间增加亮点;
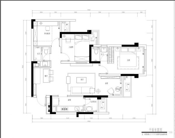
原房屋装修平面户型图
网址:威尔夏大道 浓浓现代风 https://c.jiaju82.com/news-view-id-661753.html

