完美主义的台湾人,女主开朗爱笑,新婚夫妻,酷
发布时间:2019-08-28 19:01
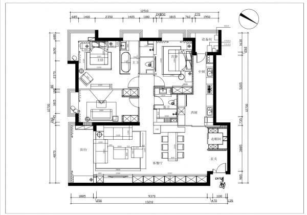
案例详情 二代人居住,男主完美主义的台湾人,女主开朗爱笑,新婚夫妻,酷爱水泥灰,酷爱烹饪,对电器要求高,所以在设计之初,他们便要求设计师为他们打造一处宽敞的厨房。
客餐厅 设计说明:现代风格的硬装框架搭配北欧风格的元素,大胆加入正红色和莫兰迪绿色,提高视觉冲击,增加空间的设计成分;阳台新建地台,充分利用视线效果好的优势,增添出一处休闲娱乐功能区域;
主卧 设计说明:主卧以灰色调为主,加入莫兰迪绿及灰绿色,增加空间的色彩丰富性;主灯以装饰性为主,用床头吊灯及落地灯辅助光源来丰富、提高空间调度。
活动室 设计说明:讲次卧改为活动室,来满足业主想要独立影音室、游戏室的需求,整体家具都为活动性家具,以方便后期改为儿童房,提高空间的灵活性;
厨房 设计说明:为满足客户中西厨的需求,将厨房进行中西厨分割,西厨作为开放性厨房与餐厅相结合,增加空间之间的互动关系;中厨作为功能性厨房以及厨房阳台作为设备间来使用;整体颜色以黑白灰色调为主,家具木本色元素,简洁温馨;
次卧 设计说明:次卧为老人房,整体色调比较稳重,减少杂乱的颜色;衣柜与墙面做整体嵌入,颜色统一,提高设计感及整体性。
卫生间 设计说明:主卫生间设计成半开放卫生间,来提高因为格局问题产生的空间亮度不够的问题;淋浴区及马桶区域都有独立空间,能满足同时使用且互不干扰;
男主完美主义的台湾人,女主开朗爱笑,新婚夫妻,酷爱水泥灰,酷爱烹饪,对电器要求高,所以在设计之初,他们便要求设计师为他们打造一处宽敞的厨房。
网址:完美主义的台湾人,女主开朗爱笑,新婚夫妻,酷 https://c.jiaju82.com/news-view-id-661210.html

