香榭兰廷120㎡ 现代简约
发布时间:2019-08-07 17:56
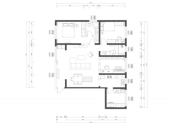
业主为一对年轻的情侣,应业主需求,此房型保留两件卧室,一间卧室改为书房,因为女业主有弹钢琴的爱好,所以本次设计要考虑到钢琴的位置还要保持美观。经过沟通,业主比较心仪现代简约风格,所以本案设计师,餐厅墙面使用石材做装饰,在侧边暗埋灯带使整个墙面变得柔和,电视背景墙与餐厅相呼应采用石材装饰,又使用木饰面消弱石材的坚硬感。整个空间无主光源,使用点光源,营造氛围。






网址:香榭兰廷120㎡ 现代简约 https://c.jiaju82.com/news-view-id-657254.html

