雅居乐130㎡ 现代
发布时间:2019-08-02 16:32
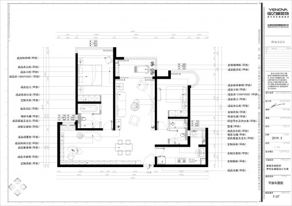
本案为两室两厅改造,将餐厅分为了书吧和就餐区,次卧改造成了弧形阳台,客厅主阳台放置了跑步机,便于用户在这个忙碌的快节奏都市中,能保持身体的强健。



客厅大体采用灰黄色背景,电视墙却用了带花纹的白色石材,看起来有点突兀,其实这恰恰是设计师的大胆之处,整体选用了一些朴质的木色材质和石材的结合,极为巧妙的营造了和谐而舒适的生活情调,使空间尽情地挥洒源远流长的神韵,闲适自如,给人心灵找寻安稳的归宿。。


由于客厅面积较大,将其中一部分做成了书吧,就餐区和书吧临近,将空间格局做了最大利用化

卧室的功能一直都是休息的代名词,靠飘窗那边改成了一个类似榻榻米的区域,可以坐在上面看看风景放松心情,还有衣柜,便于用户存放衣物。
网址:雅居乐130㎡ 现代 https://c.jiaju82.com/news-view-id-656431.html

