西安万达ONE148㎡ 现代
发布时间:2019-08-01 16:12
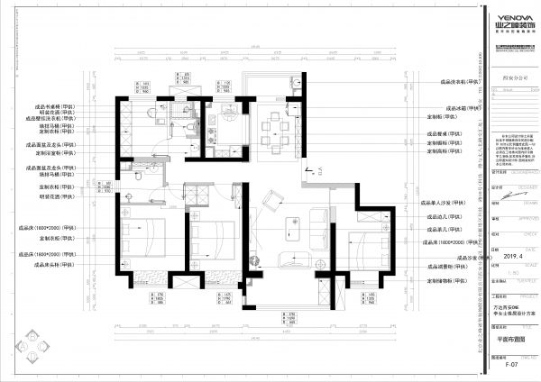
本案为四室两厅两卫,将原本的客卧改成了书房,可以在这个喧闹的都市中,让人静下心来,歇息片刻,利用入户门自然将客餐厅隔开,不会显得别扭,客厅与餐厅相对,餐厅又在阳台边,采光性强,不会显得那么压抑,用餐时也可以给用户带来好心情。。


整体采用灰色打底,在简约的同时不是显得那么简单,没有费尽心力多余装饰,就像现代人的待客之道,不再像从前那样那繁重作秀,欢聚的乐趣在于彼此的陪伴,随便找一张舒适的沙发靠着,亦或是手中端着美食大快朵颐,招待朋友也因此更加回归简单和快乐。现代人所追求的简约不正是如此?


客餐厅都在同一平面内,却又不显得那么压抑,使整个空间流动更为方便。

卧室的功能从未有太多的变化,它一直是睡眠、休息、的重要场所,将飘窗部分改成榻榻米的格式,使用户多了一处坐卧的空间,也显现了设计师的心血凝聚。




网址:西安万达ONE148㎡ 现代 https://c.jiaju82.com/news-view-id-656186.html

