新古典中式风格
发布时间:2019-06-14 00:01
案例详情 业主需求:新古典中式风格设计理念:设计中一改传统中式风格古色古香、雕梁画栋给人的刻板印象,取而代之的是亲近自然、朴实、简单却内涵丰富。简洁硬朗的直线条和计色彩的板式家具,搭配中式风格使用,更迎合了中式家居追求内敛质朴的设计风格,使新中式更加实用。而是通过中式古典元素,表达对清雅含蓄、端庄丰华的东方精神意蕴境界的追求。 中式风格的构成主要体现在传统家具,装饰色以明黄、红为主。预算说明:65万
古色古香、雕梁画栋给人的刻板印象,取而代之的是亲近自然、朴实、简单却内涵丰富。
清雅含蓄、端庄丰华的东方精神意蕴境界的追求。
而是通过中式古典元素,表达对清雅含蓄、端庄丰华的东方精神意蕴境界的追求。
简洁硬朗的直线条和计色彩的板式家具,搭配中式风格使用,更迎合了中式家居追求内敛质朴的设计风格,使新中式更加实用。
书房采用对称均衡式的布局方式,格调高雅,造型简朴优美,色彩浓重而成熟。充分体现出中国传统美学精神,传递古色古香的书香之家。
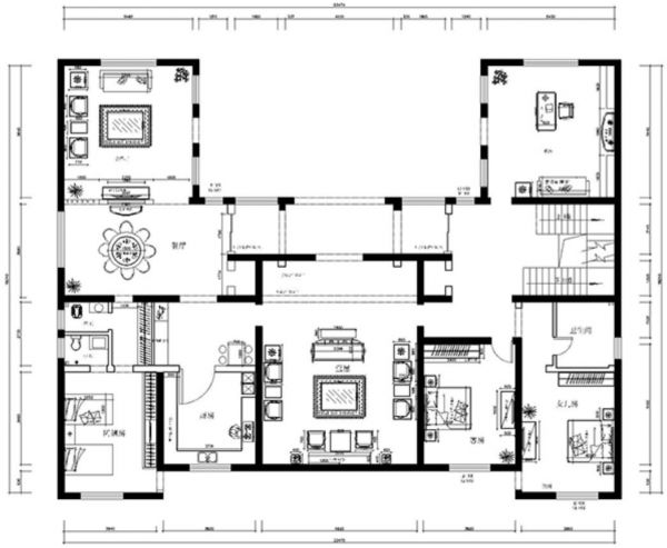
一层平面布局图。
网址:新古典中式风格 https://c.jiaju82.com/news-view-id-648395.html

