52.8平搭配淡色的木纹,营造了一个时尚的空间
发布时间:2019-05-08 02:01
案例详情 本案例基本上基于以墙纸为要装饰面材、结合混油的木工做法。这种风格强调比例和色彩的和谐。人们开始会把一堵墙的上部分与天花同色,而墙面使用一种带有淡淡纹理的墙纸。整个风格显得十分优雅和恬静,不带有一丝的浮躁。
地板采用了圣象的品牌,可靠放心
沙发在宜家购买的,搭配这个风格,很不错的
灰色为主的沙发,和这次的主题非常吻合
赛凯龙的石英石台面,搭配今朝英迈的橱柜非常不错
卫生间的洁具采用箭牌的,性价比不错
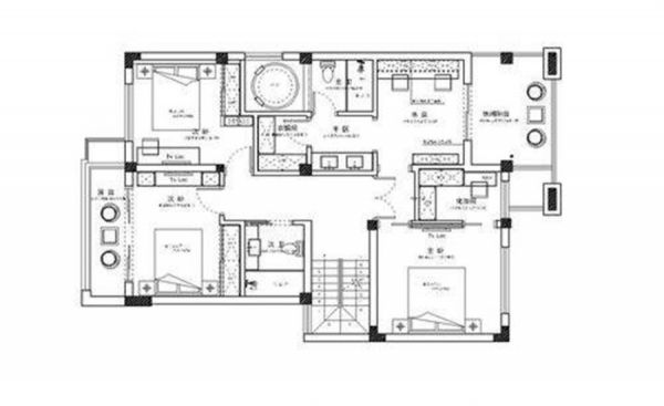
此户型,非常适合居住,分配相当合理
网址:52.8平搭配淡色的木纹,营造了一个时尚的空间 https://c.jiaju82.com/news-view-id-644751.html

