昌平顶秀青溪
发布时间:2019-05-07 23:01
案例详情 业主是一对中年夫妇,是二手房升级改造装修。对于这次改造装修要求比较高,倾向于欧式装修风格。
客厅:整体采用白色家具,墙面搭配卡其色壁纸,在顶面灯光照射下,更显温馨。墙面采用护墙板及石膏线条造型等元素,整体效果既能体现欧式风格又不会显得格外厚重。
餐厅:整体采用白色家具,墙面搭配卡其色壁纸,在顶面灯光照射下,更显温馨。墙面采用护墙板及石膏线条造型等元素,整体效果既能体现欧式风格又不会显得格外厚重。
书房:墙面采用复古风格瓷砖铺贴,搭配白色实木橱柜设计,更显简单温馨。
卧室:主卧室为大落地窗,整体采光非常好。地面采用实木复合地板,墙面搭配卡其色壁纸及石膏线造型,与客厅整体风格保持一致,床头设计欧式壁灯,提升了装饰效果的同时也兼具了灯光的氛围。
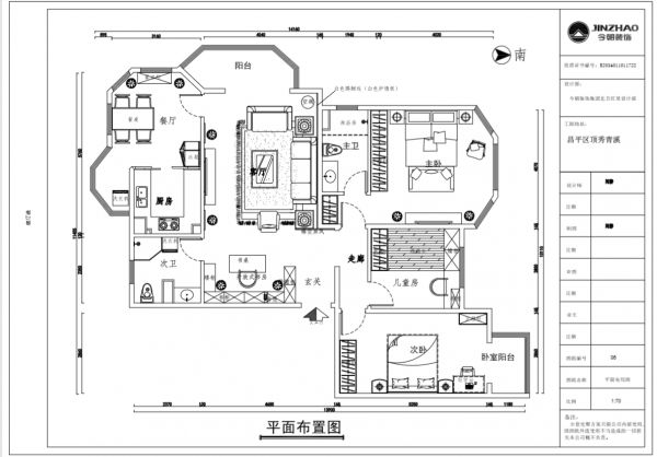
住房的平面空间布局图,即对各个独立空间的使用功能、可以直观的看清房屋的走向布局。可以弥补户型上先天不足
网址:昌平顶秀青溪 https://c.jiaju82.com/news-view-id-644734.html

