九台庄园
发布时间:2019-05-07 23:01
案例详情 有人热爱山林的平和,有人向往湖边的优雅,有人陶醉于院落的亲切,有人迷恋繁华便利的都市。都市里没有真正的田园,设计师所能给予的只是一种田园般的生活感受和家居氛围。
餐厅;设计师在这套别墅中一层采用中式古典风格,二层采用简约美式风格,采用两种风格叠加创造出全新的艺术体验给人以非凡感受。一层整体采用暖色调风格搭配红木家具,古典装饰挂画,沙发背景墙墙面做硬包,电视背景
卧室;设计师在这套别墅中一层采用中式古典风格,二层采用简约美式风格,采用两种风格叠加创造出全新的艺术体验给人以非凡感受。一层整体采用暖色调风格搭配红木家具,古典装饰挂画,沙发背景墙墙面做硬包,电视背景
客厅;设计师在这套别墅中一层采用中式古典风格,二层采用简约美式风格,采用两种风格叠加创造出全新的艺术体验给人以非凡感受。一层整体采用暖色调风格搭配红木家具,古典装饰挂画,沙发背景墙墙面做硬包,电视背景
卧室设计师在这套别墅中一层采用中式古典风格,二层采用简约美式风格,采用两种风格叠加创造出全新的艺术体验给人以非凡感受。一层整体采用暖色调风格搭配红木家具,古典装饰挂画,沙发背景墙墙面做硬包,电视背景墙
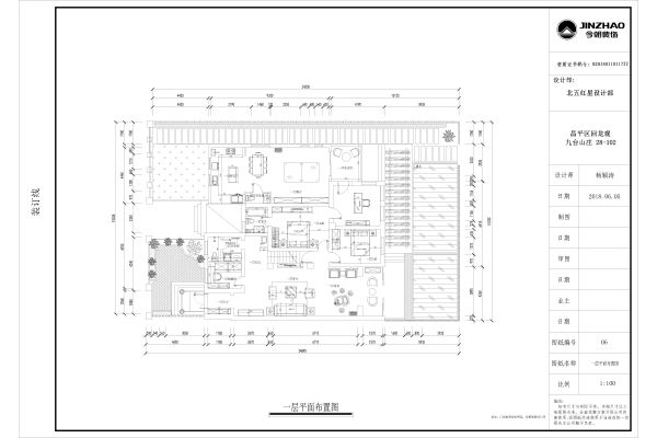
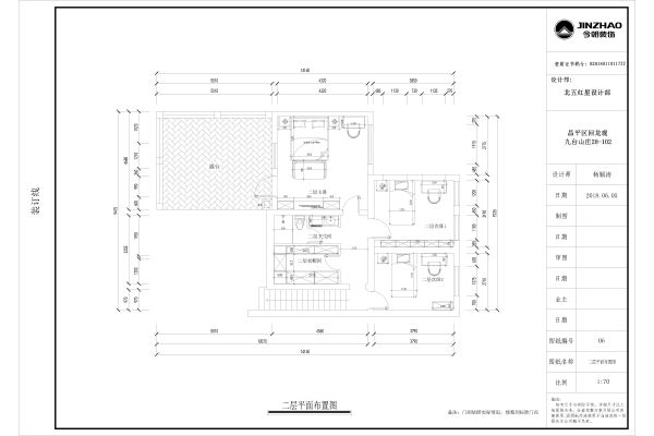
户型图;设计师在这套别墅中一层采用中式古典风格,二层采用简约美式风格,采用两种风格叠加创造出全新的艺术体验给人以非凡感受。一层整体采用暖色调风格搭配红木家具,古典装饰挂画,沙发背景墙墙面做硬包,电视背
户型图设计师在这套别墅中一层采用中式古典风格,二层采用简约美式风格,采用两种风格叠加创造出全新的艺术体验给人以非凡感受。一层整体采用暖色调风格搭配红木家具,古典装饰挂画,沙发背景墙墙面做硬包,电视背景
网址:九台庄园 https://c.jiaju82.com/news-view-id-644731.html

