首发| 石海峰:《遇见》
项目名称:《遇见》
设计范围:私宅设计
项目地点:北京市朝阳区亚运新新家园
项目面积:266.56平米
设计机构:置合美舍设计工作室
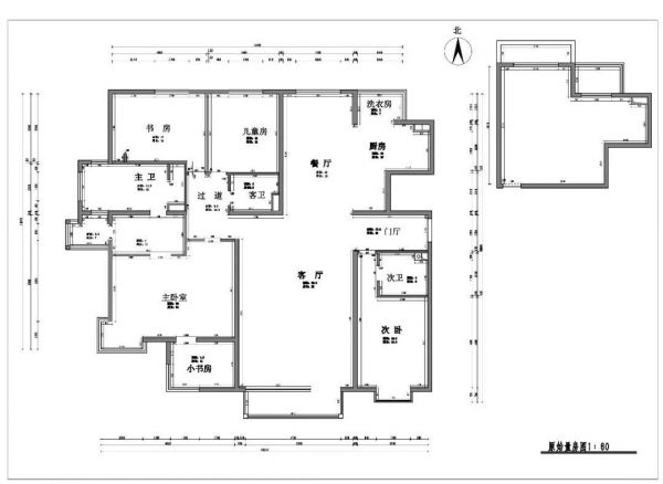
这套原本是新婚夫妇居住了10多年的平层,被设计师石海峰翻新了一遍,他用美式风格手法和当代艺术品将一栋装修过时规划又不太合理的房子转变为一个明亮、温暖、极具生活气息的地方。
这套房子有许多优点,大落地窗,宽阔的视野,优越的采光条件,设计师在墙壁和天花板之间设计了一定的弧度,简约的细节设计对房间的采光有着意想不到的效果。

壁炉:火光壁炉
白墙和石材饰面,使整个客厅简洁明快, 落地窗面朝庭院,让光线得以全方位的渗入。每天清晨,拉开窗帘,庭院内草木葳蕤,女主人练习瑜伽,孩子们自由玩耍,给繁忙的生活带来几缕惬意、绿色和安然。
客厅

家具:香奈宜居
设计师善于将各种材质相互杂糅,比如将天鹅绒扶手椅的细腻质感与木质地板的质感相调和。他精选的饰品也独具匠心,比如骑着独角兽的女孩摆件,业主将其喻为丈夫承载着妻子,一同面对生活的点滴。

把一个必经之所变成让我们有理由停留的空间,这是一件很有意思的事。门厅的玄关柜几支梅花缓缓铺开,与青花牡丹花卉罐中的红白梅相映成趣,交错掩映,别有生机。
青花是石海峰的情节,“丹青妙笔玲珑,红莲凝练清泓。”一解“如梦令 青花瓷”,陈列精致。
餐厅

餐厅的空间也被规划的井井有条,妙趣横生的桌布搭配木质家具,加上天然的材料花束,为整个空间注入了些许独特的气息,让用餐时光变得更加享受。

瓷砖:简一大理石瓷砖 正中大理石砖 IMOLA蜜蜂

主卧

窗帘软装:法泰软装
主卧的色调由色调很相近的床品和壁纸组成,这是一种风格简约的设计,色彩并不突出,表现得非常微妙。墙壁的暖色与窗帘的颜色相配,赋予空间一种优雅而平和的氛围,同时使作品可以充分表现出它们的力量。
用具多以舒适实用和多功能为主,不过分强调繁复的雕刻和细节,设计师希望呈现的是返璞归真的舒适自在空间。


洁具:汉斯格雅Hansgrohe
淋浴房:玫瑰岛
儿童房

地板:LAK
儿童房选用了孩子们最喜欢的色调,简单大方,让他们发挥自己的思维空间,天马行空的奇思妙想,在成长的过程中自由布置。柔光暖色的照明让孩子感觉温馨与舒适。


整体木作:凯源盛泽
园林:集景云成
石海峰的视角犀利,体现在他对低调和简约的追求以及对美的热爱。他的这些特点在这套267平方米的房子里得到了充分的体现。以生活为核心的设计理念,根据业主需求并且适当的将自己的情感带入而设计出的有“灵魂”的作品。兼具美观与舒适的空间,承载着业主生活的点点滴滴。

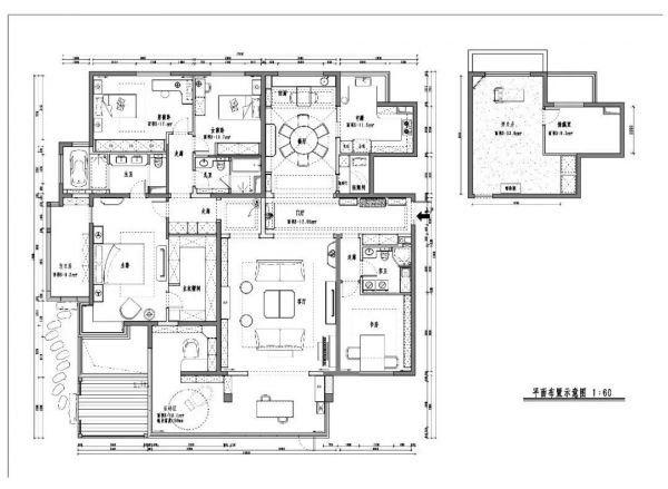
▲设计后平面图



石海峰
置合美舍联合创始人
中央工艺美院环境艺术系
威尼斯美术学院室内设计高级研修
意大利米兰理工大学布雷拉美术学院
中国建筑装饰协会注册装饰设计师高级资格
北京建筑装饰协会注册装饰设计师高级资格
原东易日盛高级专家设计师
联合创建置合美舍
联合创建共合设
获奖情况:
2018年获中国装饰协会筑巢奖 银奖
2017-2018(中国)40UNDER40设计杰出青年
2017-2018(北京)40UNDER40设计杰出青年
2016年上海设计双城记金蝴蝶奖 金奖
2016年大金内装设计大赛美宅 金奖
2016年获中国装饰协会筑巢奖 银奖
2015年 获中国装饰协会筑巢奖? 银奖
2015年大金内装设计大赛美宅 银奖
2014年中国住宅设计风尚人物
2013-2014年度十大最具创新设计人物
andmore. . . . . .
设计感言:
生活中最重要的是信任和沟通,设计中也一样。
“受人之托,忠人之事”
作为行业中少数出生在军人家庭又有军旅生涯的设计师,对于客户和项目有着一份超越常人的责任心与使命感。近20年职业生涯,积累了丰富的工作经验,在这份经验中不断地学习与超越,让设计越来越具有灵性。
与国际、国内设计界丰富的交流经验,给予了设计方案中更多的闪光点和经典元素
——帅气、果断、责任心、拥有细腻而丰富的设计感悟。
网址:首发| 石海峰:《遇见》 https://c.jiaju82.com/news-view-id-626753.html

